







Va propunem spre vanzare apartament modern cu 2 camere, situat pe Str. Balastierei , într-o zonă liniștită și sigură, cu priveliște frumoasă și acces rapid la centura Grigorescu – ideal pentru cei care doresc să evite traficul intens și să ajungă rapid în Cluj-Napoca.
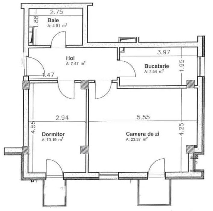
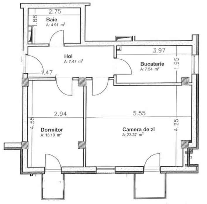
Cu o suprafață utilă de 56,5 mp, completată de două balcoane (3,9 mp) și un balcon franțuzesc, apartamentul este eficient compartimentat: două camere decomandate generoase, bucătărie separată complet utilată (inclusiv mașină de spălat vase), baie cu cadă și hol spațios. Situat la etajul 2 al unui imobil construit în 2020, dotat cu lift, proprietatea oferă confort modern și funcționalitate.
Ansamblul beneficiază de curte privată, acces restricționat și supraveghere video, iar în preț este inclus un loc de parcare exterior, în curtea interioară.
O locuință potrivită pentru confort, siguranță și mobilitate excelentă. Programează o vizionare și descoperă avantajele acestei proprietăți.
Pret : 90.000 euro
P151432