
Va propunem spre vanzare apartament intr-un imobil nou construit in Apahida zona Penny!
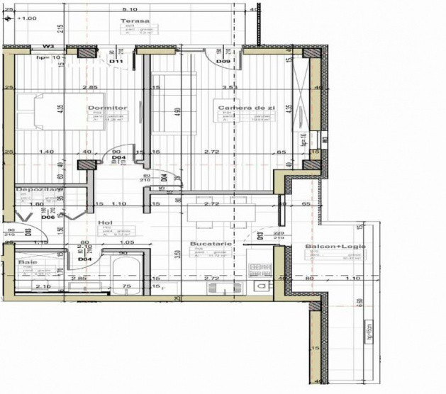
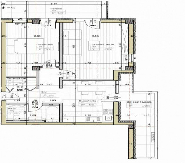
Apartamentul este situat la etajul al II-lea si are o suprafata de 37.53 MP
Apartamentul se vinde semifinisat, prețul include TVA de 21% inclus
Apartamentul este compartimentat astfel:
-hol cu spatiu de depozitare/dressing
-baie
-bucatarie
-dormitor
-camera zi
-balcon
-balcon cu logie
Locurile de parcare se vând separat.
Parcare exterioară: 5.000 euro
Parcare subterană: 7.000 euro.
Pret apartament 86.000 euro pentru plata integrala.
Predarea se face la final de an, iar CF urile până în februarie anul viitor.
ID Extern P144961