



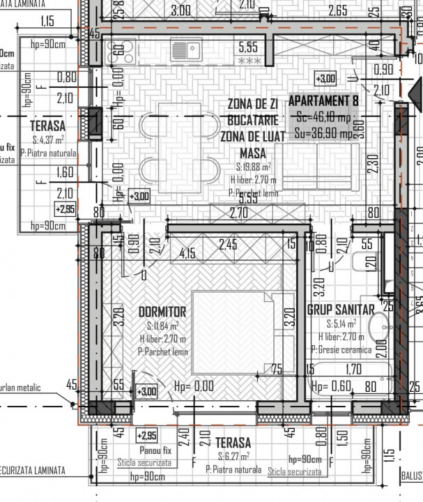
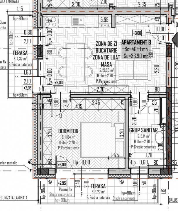
GreenCasa Imobiliare va propune spre vanzare 3 apartamente noi, semifinisat, 2 camere | Baciu strada Cometei Zonă retrasă și liniștită. va prezint un apartament într-un bloc exclusivist, cu doar 12 apartamente, construit din beton armat și cărămidă, cu izolație exterioară de 15 cm. Apartamentele se afla la etajul 1, are o compartimentare modernă cu orientare sudică: living cu bucătărie open-space + balcon, dormitor + balcon cu vedere superba, baie cu geam.Dotări premium: Centrală termică proprie Încălzire în pardoseală Geamuri termopan cu profil PVC Regim redus de înălțime (D+P+2) intimitate și liniște , 2 Apartamente: preț -69,500 +Tva suprafața 37mp +2 balcoane 6,27mp +4,37mp si 1 apartament preț -76,500 +Tva suprafața 40,40mp + balcon 8,91mpParcare subterană disponibilă 8.500 Ideal pentru locuință sau investiție, într-o zonă aerisită, aproape de oraș, dar departe de agitație.
ID Extern P141968