



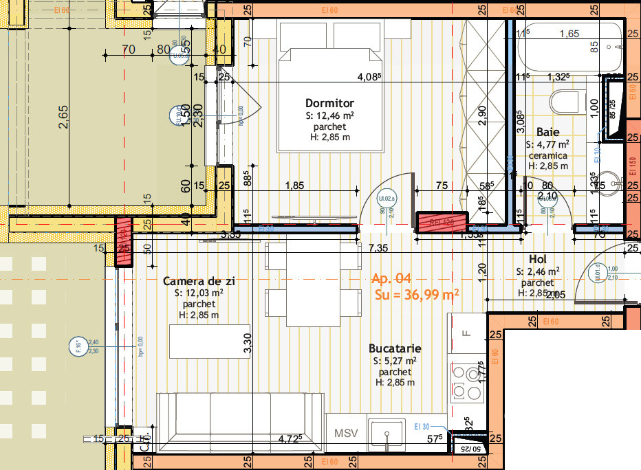
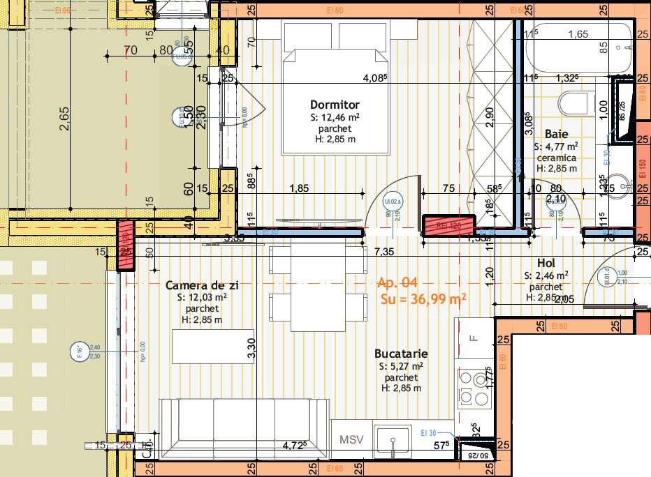
GreenCasa Imobiliare vă propune spre vânzare un apartament modern cu 2 camere, 36,99mp, situat la parter într-un bloc S+P+4+etaj retras, construcție 2025, CF în 2026, cu lift, pe strada Someșului, Florești, într-un ansamblu rezidențial exclusivist.
Apartamentul se predă finisat și utilat cu cele mai noi standarde: încălzire în pardoseală, centrală termică proprie, ferestre tripan cu tâmplărie Salamander, parchet, faianță și gresie, băi complet utilate, uși interioare și instalații electrice finalizate. Pentru cei care doresc varianta semifinisată, prețul se reduce cu 100 €/mp.
Compartimentarea inteligentă include un living spațios cu bucătărie open-space, dormitor, baie și balcon de 8,22 mp, oferind confort, lumină naturală și acces facil la toate zonele clădirii.
Pentru mai multe detalii sau pentru a programa o vizionare, vă rugăm să ne contactați.
GreenCasa vă asigură servicii de creditare la cele mai bune dobânzi și în cel mai scurt timp, prin divizia GreenCasa Broker, partener oficial Kiwi Finance.
P139515