






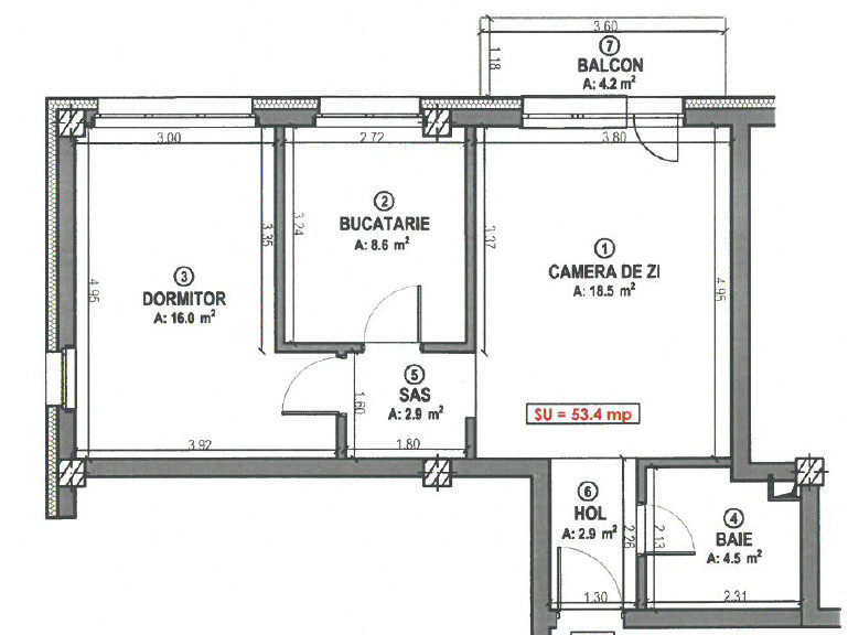
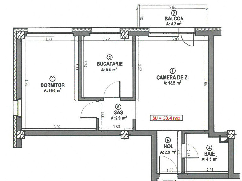
GreenCasa Imobiliare vă propune spre vânzare un apartament cu 2 camere, situat la etajul 2 al unui imobil nou cu regim de înălțime P+3, în zona Terra, Florești.
Locuința are o suprafață utilă de 53,4 mp, la care se adaugă un balcon de 4,2 mp, și este compartimentată astfel: hol de intrare, baie, bucătărie decomandată, cameră de zi și dormitor.
Apartamentul se predă la stadiul de semifinisat și dispune de dotări moderne: ușă metalică la intrare, tâmplărie PVC cu 3 sticle și 7 camere, instalații electrice și sanitare trase pe poziții, centrală termică proprie și pereți gletuiți.
Separat, se poate achiziționa un loc de parcare exterior, la prețul de 4.000 euro.
Pentru mai multe detalii sau pentru programarea unei vizionări, vă rugăm să ne contactați.
P139898