






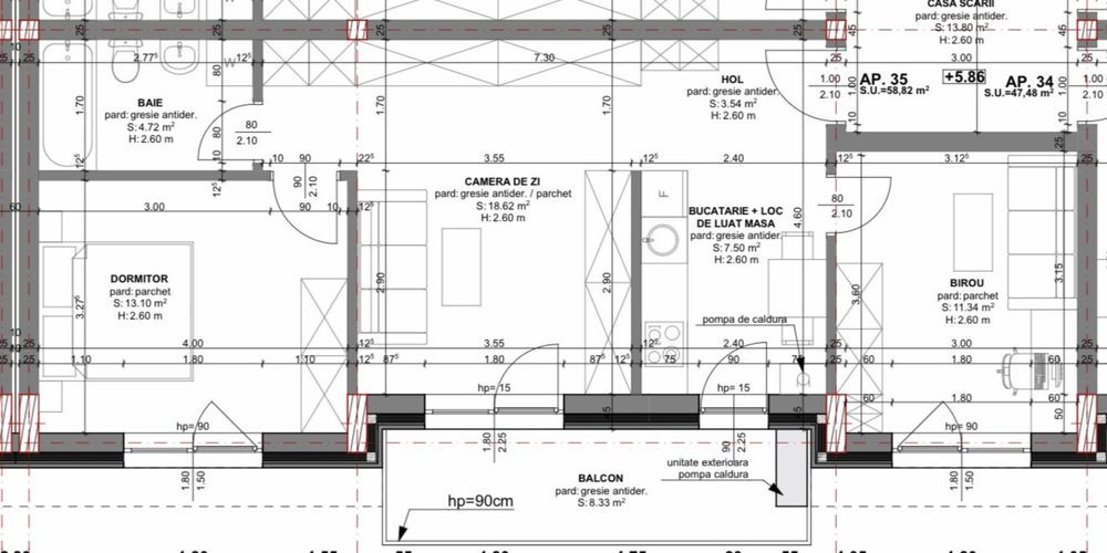
Apartament de 3 camere situat la etajul 2 într-un ansamblu liniștit, Beta Residence – Chinteni.
Suprafata: 59 mp utili + balcon 8mp
Compartimentare ideală:
- Hol de acces
- Bucătărie parțial închisă – perfectă pentru un mediu curat și aerisit
- Living luminos cu acces pe balcon
- 2 dormitoare confortabile
- 1 baie moderna
Finisaje & Dotări Premium:
- Apartament finisat complet
- Încălzire în pardoseală – centrala termică proprie
- Aer condiționat montat
- Balcon generos
- Luminozitate excelentă, orientara sudica
- Izolație bună și costuri mici la întreținere
Prețul include BONUSURI rare în zonă:
- Parcare exterioară cu CF (inclusă)
- Boxă de depozitare de aprox. 15 mp situată în podul imobilului – ideală pentru depozitare sezonieră sau hobby-uri
ID P145415