








Apartament 3 camere de vânzare – etaj intermediar , zona Tineretului .
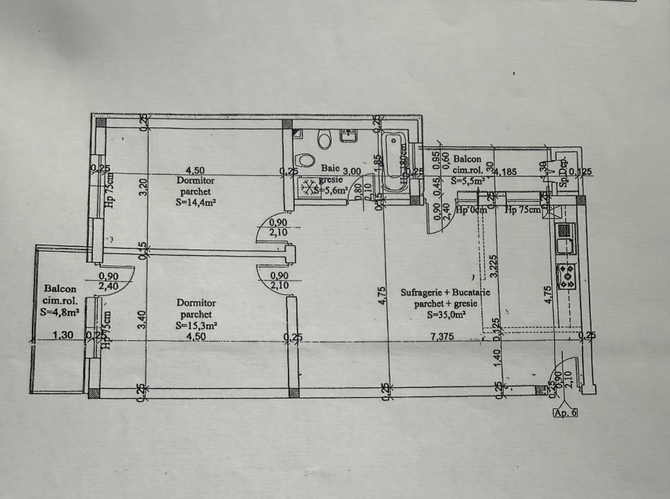
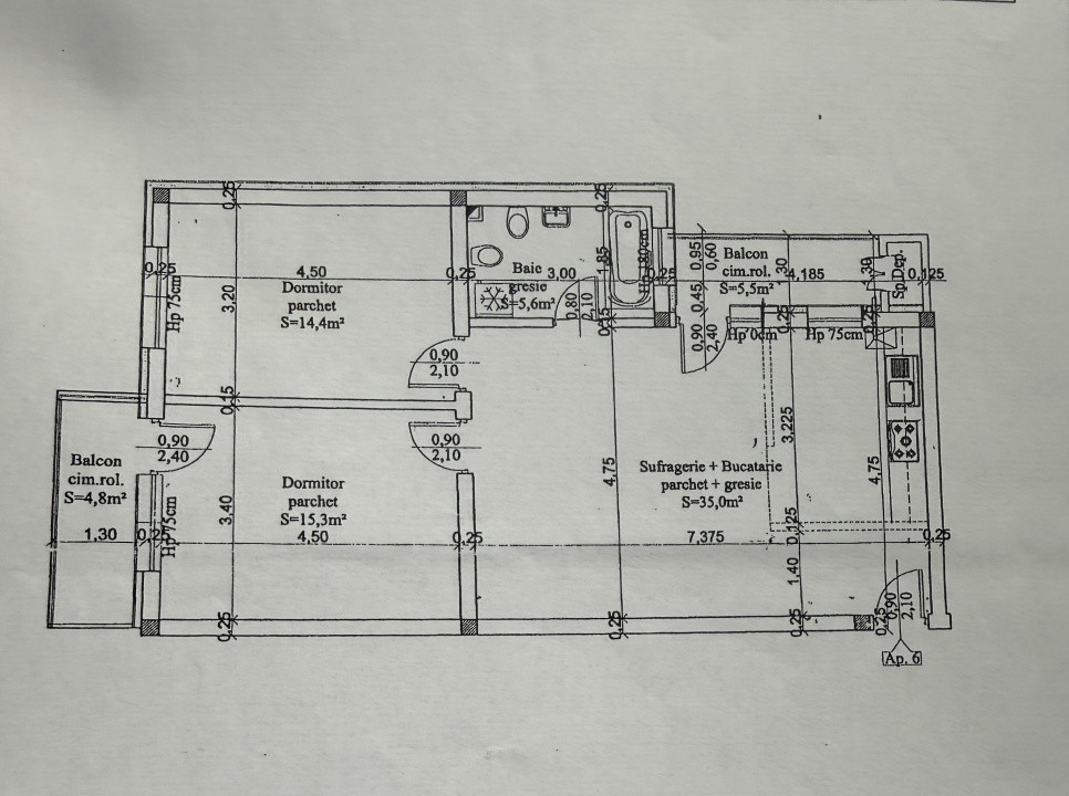
Se oferă spre vânzare apartament cu 3 camere, situat la etaj intermediar, cu o suprafață utilă de peste 70 mp.
Compartimentare:
2 dormitoare
Living cu bucătărie open-space
2 balcoane, cu suprafață totală de 10,3 mp
Avantaje:
Apartamentul se vinde exact ca în poze
Compartimentare modernă și funcțională
Luminos, ideal pentru locuință sau investiție
Loc de parcare disponibil – preț 5.000 €
Suprafețe:
Suprafață utilă: >70 mp
Suprafață balcoane: 10,3 mp
Pentru detalii suplimentare și vizionări, contact direct.
ID P148926