







Vă propunem spre vânzare o vilă tip duplex, situată în Bragadiru, într-o zonă rezidențială liniștită, cu acces facil către principalele puncte de interes. Proprietatea este construită cu materiale premium și se predă complet la cheie, cu posibilitatea alegerii finisajelor interioare.
Suprafața totală a terenului este de 350 mp, din care 283 mp reprezintă curte liberă, ideală pentru relaxare, grădină sau spațiu de joacă.
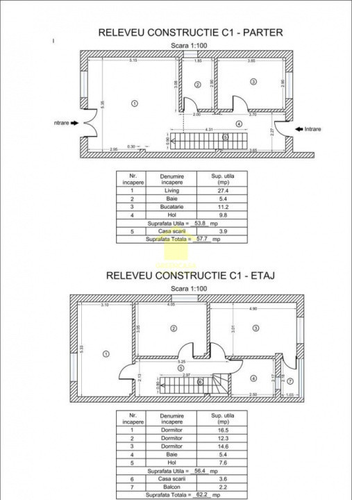
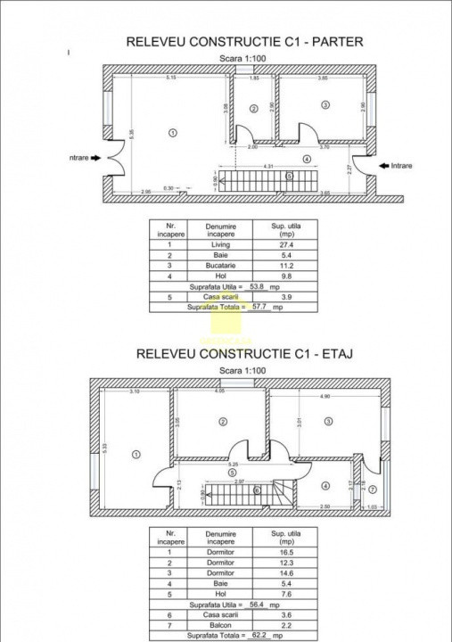
Regim de înălțime: P+1+mansardă
– suprafață construită la sol: 67 mp
– suprafață utilă: 120 mp + mansardă 40 mp
– terasă: 18 mp, cu beton amprentat
Compartimentare:
Parter:
– living
– bucătărie
– baie
– hol
– casa scării
– terasă de 18 mp
Etaj:
– 3 dormitoare
– baie
– hol
– un dormitor cu acces la balcon
Mansardă:
– spațiu generos, ideal pentru birou, dormitor, zonă hobby sau depozitare
Detalii tehnice și finisaje:
– structură din beton armat
– zidărie din cărămidă Porotherm de 30 cm
– placă și scară din beton între etaj și mansardă
– mansardă izolată cu spumă și placată cu OSB
– tâmplărie tripan
– izolație exterioară polistiren EPS 80 Austrotherm, grosime 10 cm
– vopsea decorativă exterior și lavabilă Oskar la interior
– încălzire în pardoseală, cu distribuitoare pe fiecare etaj
– instalație electrică și aparataj Gewiss
– curent trifazic, cu posibilitatea instalării unei prize pentru încărcare auto
– acoperiș cu țiglă metalică și șageac metalic Wetterbest
Exterior:
– gazon rulou cu sistem de irigație
– parcare și trotuare cu beton amprentat
– racordată la canalizare
Casa este oferită la cheie, însă în prezent se află la stadiul „la alb”. Se pun la dispoziție bugete pentru alegerea finisajelor (gresie, faianță, parchet, uși interioare), astfel încât viitorii proprietari să își personalizeze locuința. Fotografiile sunt cu caracter informativ și reprezintă finisajele alese de un client anterior.
Termenul de predare este: august-septembrie 2026.
GreenCasa vă asigură servicii de creditare rapide, prin divizia GreenCasa Broker, partener oficial Kiwi Finance.
Pentru informații suplimentare și programarea unei vizionări, vă rugăm să ne contactați.
P148150