









Vă prezentăm o casă individuală nouă, finalizată la sfârșitul anului 2024, situată la intrarea în Chinteni, în spatele magazinului Profi, într-o zonă aerisită, liniștită și cu o panoramă deosebită asupra împrejurimilor.
Imobilul este amplasat pe un teren generos, cu suprafața totală de 472 mp, beneficiind de acces asfaltat până la proprietate și toate utilitățile racordate (apă, canalizare, gaz, curent electric).
Detalii construcție:
Casă realizată din cărămidă eficientă energetic;
Izolație termică de 15 cm și tencuială decorativă siliconată, rezistentă la umiditate;
Tâmplărie PVC Salamander, cu geam tripan (3 foi de sticlă);
Încălzire în pardoseală pe ambele niveluri, asigurată de centrală termică pe gaz;
Design modern și luminos, cu orientare ideală pentru o insorire optimă.
Stadiu de predare: semifinisat
Pereți tencuiți și gletuiți (două straturi);
Șapă turnată;
Instalații electrice și sanitare trase pe poziții.
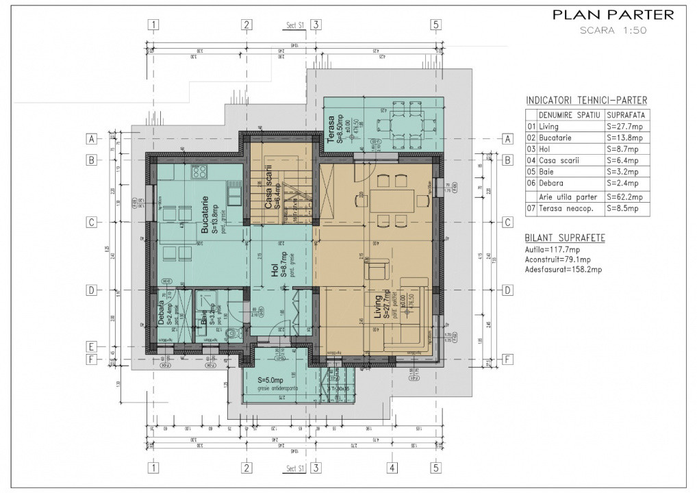
Compartimentare:
Parter (62,2 mp utili):
Living – 27,7 mp
Bucătărie – 8,7 mp
Hol – 6,4 mp
Casă scării – 3,2 mp
Baie – 3,2 mp
Debara – 2,4 mp
Terasă neacoperită – 8,5 mp
Etaj (55,5 mp utili):
Dormitor 1 – 14,2 mp
Dormitor 2 – 12,4 mp
Dormitor 3 – 11,0 mp
Dressing – 3,2 mp
Baie – 3,2 mp
Hol – 2,4 mp
Balcon – 11,45 mp
Suprafațe:
Suprafață construită la sol (Sc): 79,1 mp
Suprafață desfășurată (Sd): 158,2 mp
Suprafață utilă totală (Su): 117,7 mp
Preț: 255.000 €
Această proprietate reprezintă alegerea ideală pentru cei care caută o casă nouă, eficientă energetic, cu design modern, într-o zonă liniștită, dar foarte aproape de Cluj-Napoca.
ID extern: P141787