






Va propunem pentru vanzare o locuinta unifamiliala noua, cu un design modern si materiale de calitate superioara situata la intrare in Chinteni.
Locuinta face parte dintr-un ansamblu de 7 case, cu front la strada principala.
Amplasata pe un teren in suprafata de 514mp, locuinta are regimul de inaltime P+E.
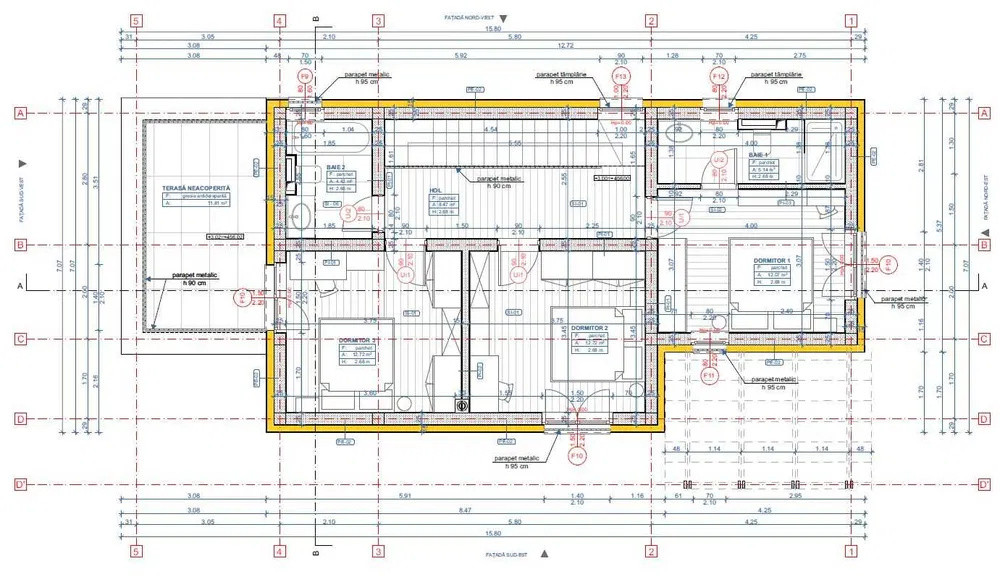
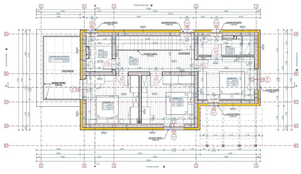
Suprafata utila a casei este de 127.7mp + 11.81mp de terasa circulabila si este configurata astfel:
Parter: Hol 5.54mp, Birou 15.52mp, Grup sanitar 2.56mp, Camera de zi 28.90mp, Casa de scara 5.24mp, Bucatarie 12.26mp, Camera tehnica 5.16mp.
Etaj: Hol 8.47mp, Dormitor1 12.07mp, Baie dormitor 5.14mp, Dormitor2 12.72mp, Dormitor3 12.72mp, Baie hol 4.42mp.
Structura casei este realizata din zidarie de caramida cu goluri verticale, placa si elemente verticale de beton armat. Structura planseului peste etaj este formata din grinzi de lemn si izolatie de vata minerala de 30cm. Termoizolatia de la nivelul solului este din polistiren de 15cm. Intreaga infrastructura este hidroizolata.
Imobilul se vinde la stadiul de semifinisat.
Locuinta are toate utilitatile, cu instalatiile trase la pozitie si posibilitatea personalizarii sistemului de incalzire. Instalatia electrica dispune de infrastructura completa pentru realizarea unui sistem de supravaghere video precum si de iluminat exterior.
Anveloparea cladirii este realizata cu vata bazaltica de 15cm, decorativa silicata Baumit si caramida ornamentala pentru un design elegant si eficienta energetica.
Invelitoare este realizata din tigla ceramica.
Tamplarie Barier (Rehau, Synego) de PVC de 80mm cu 7 camere, panou de sticla 50mm, in 3 straturi cu tratament Low-E. Glafuri de granit.
Casa este prevazuta cu sistem de horn profesional de la Kamihorn.
Panouri fotovoltaice de 5kw.
Panou solar pentru apa calda si sistem de bolier stativ de 200l, centrala termica in condensatie Buderus si incalzire in pardoseala.
Bazin de colectare a apelor, conectat la sistemul pluvial al cladirii.
Intreaga curte este amenajata si dispune de sistem de irigatii automatizat cu statie meteo iar locurile de parcare si aleea de acces pavate cu dale.
Pretul de vanzare al imobilului este de 220.000euro + TVA 21%.
Id extern: P138415