





Vă prezentăm un complex restrâns format din 3 case individuale, Dezmir, Cluj Napoca, proiectate pentru confort, funcționalitate și intimitate, situate într-o zonă accesibilă, cu drum asfaltat și toate utilitățile disponibile.
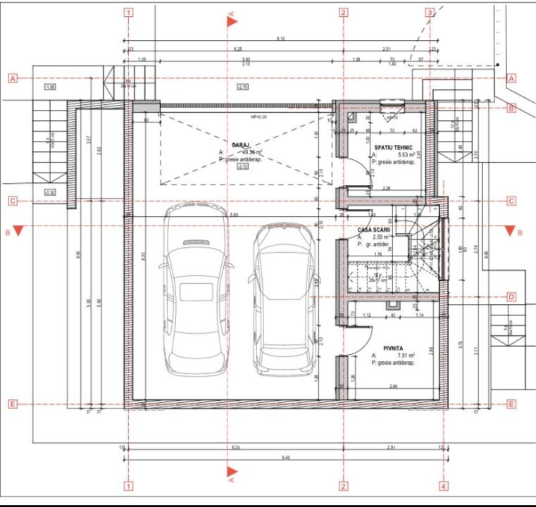
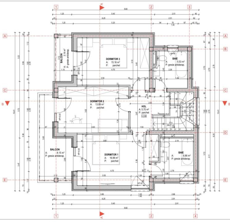
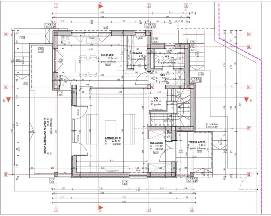
Fiecare locuință este construită pe un regim de înălțime Demisol + Parter + Etaj, având o suprafață utilă de aproximativ 185 mp și fiind amplasată pe un teren generos de 400 mp.
Compartimentarea este ideală pentru o familie:
3 dormitoare spațioase
3 băi moderne
Living luminos și primitor
Bucătărie practică și bine organizată
Pivniță la demisol, perfectă pentru depozitare sau spațiu tehnic
Garaj dublu, pentru confort și siguranță
Locuințele beneficiază de toate utilitățile (apă, gaz, curent, canalizare) și acces facil pe drum asfaltat.
Termen de finalizare 2026 luna august.
Designul modern și compartimentarea eficientă oferă un stil de viață echilibrat, într-un cadru liniștit, dar bine conectat.
Preț de vânzare: 270.000 €
ID extern: P153903