Imagine 104

Casă eficientă energetic, 121 mp, teren 830 mp – Gilău

ID: P154968 Gilau, Central 14
240.000€
Descriere
Descoperă căldura unui cămin modern, gândit pentru confortul familiei tale, situat la intrare în Gilău, într-o zonă liniștită, cu aer curat și acces rapid către Cluj-Napoca. Această proprietate nu este doar o casă, ci un spațiu în care diminețile încep cu lumină naturală, iar serile se petrec în liniște, pe terasă, alături de cei dragi.

Construită în 2024 și realizată conform standardelor NZEB (consum aproape zero de energie), casa îmbină eficiența energetică cu un design modern și funcțional. Beneficiază de un sistem fotovoltaic de 11 kW cu invertor hibrid Huawei de 10 kW, pompă de căldură și sistem de ventilație cu recuperare de căldură, asigurând un consum redus și un confort constant. Izolația exterioară de 15 cm, completată de 25 cm de lână de lemn în pod, contribuie la un climat interior optim pe tot parcursul anului.

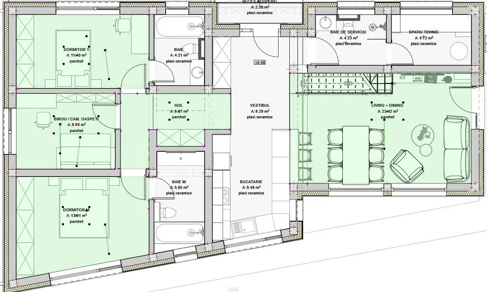
Cu o suprafață utilă de 121,7 mp, locuința este compartimentată inteligent pentru viața de familie. Livingul generos și luminos devine centrul casei, ideal pentru momentele petrecute împreună, iar bucătăria separată oferă intimitate și funcționalitate. Proprietatea dispune de două dormitoare confortabile, fiecare cu baie proprie, un birou perfect pentru work from home sau cameră de oaspeți, trei băi moderne și un spațiu tehnic bine organizat. Terasa acoperită de 18,5 mp completează perfect zona de relaxare.

Terenul generos de 830 mp oferă multiple posibilități de amenajare: grădină, loc de joacă pentru copii sau chiar o piscină, transformând curtea într-un spațiu ideal pentru petrecerea timpului în aer liber.

Această casă este alegerea perfectă pentru o familie care își dorește liniște, siguranță și un stil de viață sustenabil, cu costuri reduse și confort ridicat, într-o locație aflată la doar 15–20 de minute de Cluj-Napoca.

Pentru informații suplimentare și programarea unei vizionări, vă rugăm să ne contactați.

P154968
Caracteristici
  • ID:P154968
  • Nr. camere:4
  • Nr. dormitoare:3
  • S. utila:121.70 mp
  • S. teren:830.00 mp
  • Nr. bucatarii:1
  • Nr. bai:3
  • An constructie:2024
  • Structura rezistenta:Caramida
  • Clasa energetica:A
Specificatii
Curent
Apa
Canalizare
Gaz
Centrala proprie
Ventiloconvectoare
Izolatie Exterior
Vopsea lavabila
Parchet
Ferestre Termopan
Jaluzele Verticale
Usa intrare Metal
Usa interior Lemn
Spatiu depozitare
WC Serviciu
Bucatarie Mobilata
Bucatarie Utilata
Complet mobilat
Localizare
Dănuț Breha
Manager
Esti interesat de aceasta proprietate ?
Proprietati similare
TOP De vanzare Imagine 6086
CASĂ NOUĂ CU GARAJ, 150 MP, LÂNGĂ PROFI CHINTENI
Chinteni, Central 235.000€
4 camere 3 bai 150mp
TOP 0% comision De vanzare Imagine 5557
Casă P+E+Pod, mobilată complet, 130mp utili, teren 250 mp, Domnești
Domnesti 205.990€
4 camere 3 bai 130mp
TOP De vanzare Imagine 5404
Casă individuală premium, P+M, 140 mp, teren 500 mp, Domnești
Domnesti 210.000€
4 camere 2 bai 140mp
TOP De vanzare Imagine 1260
Casa individuala P+E, pompa de căldură, panouri fotovoltaice
Baciu 240.000€ 250.000€
4 camere 2 bai 129mp
0% comision De vanzare Imagine 8468
Duplex modern în zona Oașului, ideal pentru o familie, investiție
Cluj-Napoca, Iris 250.000€
4 camere 3 bai 162mp
0% comision De vanzare Imagine 8352
Casă de vacanță spațioasă în Călățele Pădure – Dealul Negru, teren 2000 mp
Calatele, Central 220.000€
3 camere 2 bai 218mp