







Vă propunem spre vânzare o casă deosebită pe un nivel în Popești.
Descoperă confortul unei locuințe moderne, amplasată într-o zonă liniștită din Popești, Cluj, la doar câteva minute de oraș!
Detalii generale:
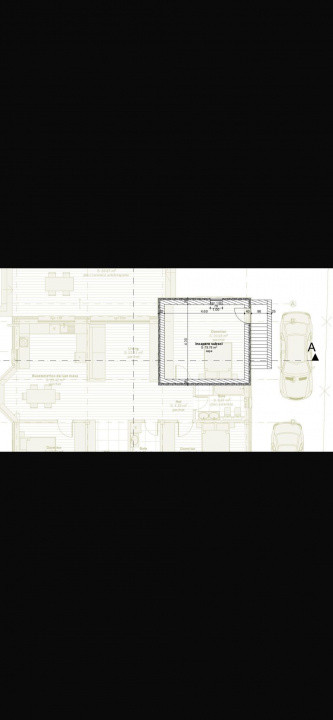
Suprafață utilă: 120 mp
Suprafață teren: 700 mp
Regim: Parter
Disponibile două variante: cu sau fără beci
Varianta cu beci – aprox. 30 mp, ideal pentru depozitare, cramă sau spațiu tehnic.
Preț: 269.000 €
Varianta fără beci: 259.000 €
Finisaje și dotări:
Se predă finisată la exterior: fațadă modernă, gard, pavaje și gazon amenajat
Semifinisată la interior: instalații electrice și sanitare realizate, pereți gletuiți, încălzire în pardoseală, șapă turnată — perfectă pentru a o personaliza după gustul tău
Terenul generos de 700 mp oferă intimitate, spațiu verde și posibilitatea de amenajare a unei terase sau grădini.
Locație: Popești, o zonă rezidențială în continuă dezvoltare, cu acces facil către Cluj-Napoca.
Ideală pentru o familie care își dorește o casă pe un singur nivel, modernă, luminoasă și amplasată într-un cadru natural, dar aproape de oraș.
ID extern: P141731