







Descoperă acum casa ideală pentru tine și familia ta, într-o zonă apreciată pentru liniște și aer curat, cu acces rapid spre Bucuresti.
Îți propunem spre vânzare o casă parter cu placă de beton, construcții independente, amplasate pe terenuri generoase de 400 mp, situate într-o zonă frumoasă și liniștită din Clinceni. Locuințele sunt concepute pentru confort și funcționalitate, fiind ideale atât pentru locuire permanentă, cât și pentru investiție.
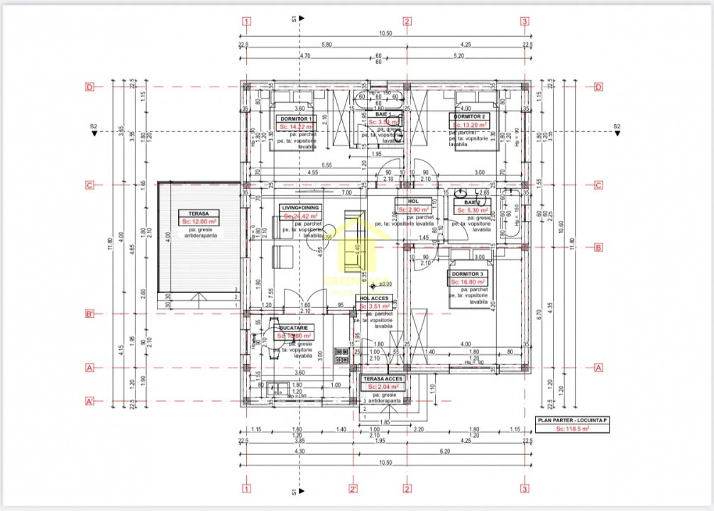
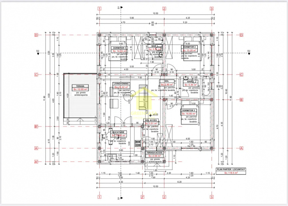
Compartimentarea este practică și modernă, in suprafata de 95mp: living spațios cu bucătărie open-space, 3 dormitoare și 2 grupuri sanitare complet mobilate și utilate. Casele beneficiază de placă de beton peste parter, oferind posibilitatea unei extinderi ulterioare.
Dotări și finisaje:
– centrală termică pe gaz
– încălzire în pardoseală
– parchet, gresie și faianță de calitate
– tâmplărie Salamander, 6 camere, tripan, sticlă low-e de 44 mm (4 anotimpuri)
– izolație termică exterioară de 10 cm, realizată cu polistiren EPS 80
Utilități complete: gaze naturale, curent electric, canalizare și apă curentă.
Casa se predă cu toate finisajele incluse. Termen de predare: primăvara 2026.
GreenCasa vă asigură servicii de creditare rapide, prin divizia GreenCasa Broker, partener oficial Kiwi Finance.
Pentru informații suplimentare și programarea unei vizionări, vă rugăm să ne contactați.
P148035