




Casă nou construită în 2025, pe parter, ideală pentru o familie care își dorește confort, funcționalitate și o curte proprie, într-o zonă liniștită, dar cu acces rapid către oraș.
Imobilul este situat în Domnești, într-o zonă nouă de vile, cu acces facil către București, Centura Capitalei, A1 și A0.
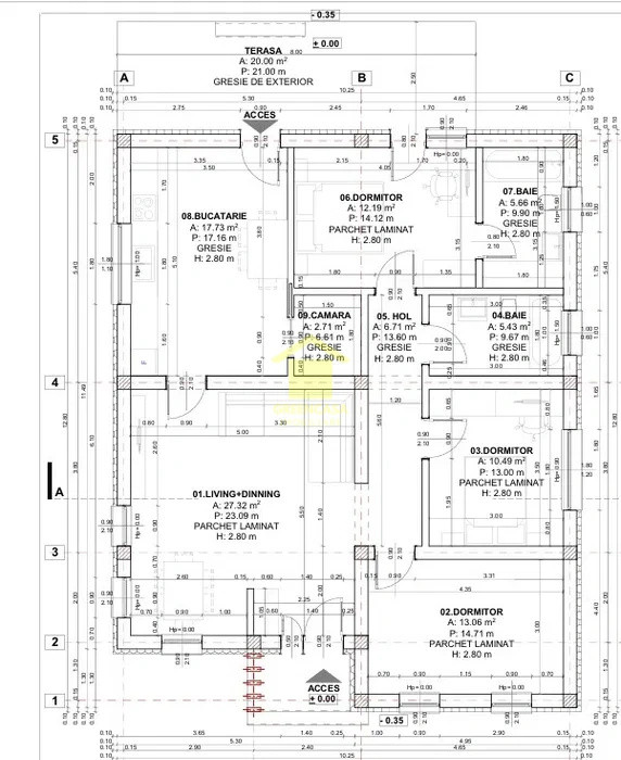
Detalii proprietate:
– Teren: 400 mp, curte individuală, împrejmuită
– Suprafață casă: 124 mp
– Terasă: 15 mp
Compartimentarea este eficientă și bine gândită, incluzând un living spațios cu ferestre mari pentru lumină naturală, 3 dormitoare, bucătărie separată (închisă), cu cămară, 2 băi și spațiu de depozitare/debara.
Dotări și finisaje:
Casa se predă la cheie, iar finisajele interioare pot fi alese de viitorul proprietar, în funcție de preferințe.
– Încălzire în pardoseală pe toată suprafața, pentru confort sporit și costuri reduse
– Centrală termică proprie
– Tâmplărie tripan Salamander, cu 3 rânduri de garnituri și feronerie Roto
– Acoperiș Bilka Grande Mat 0,5 mm, cu durată de viață de până la 60 de ani
– Izolație exterioară eficientă energetic
Exterior:
Curtea este generoasă, oferind spațiu suficient pentru grădină, foișor sau loc de joacă. Acces auto cu poartă metalică și posibilitate de parcare în curte pentru două autoturisme.
Localizare și facilități:
Stradă liniștită, cu vecini stabili. În apropiere se regăsesc magazine, școală, grădiniță și mijloace de transport în comun.
GreenCasa vă asigură servicii de creditare rapide, prin divizia GreenCasa Broker, partener oficial Kiwi Finance.
Pentru informații suplimentare și programarea unei vizionări, vă rugăm să ne contactați.
P148045