







Oază de liniște pe strada Urușagului, Florești – proiect exclusiv cu doar 6 unități
Locuință spațioasă, modernă și bine organizată, într-o zonă retrasă, ferită de trafic și zgomot, dar cu acces rapid spre Cluj-Napoca. Proiectul cu 6 unități locative oferă intimitate, confort și o comunitate selectă, potrivită familiilor care apreciază liniștea și organizarea eficientă a spațiului.
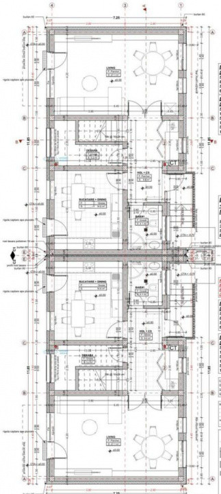
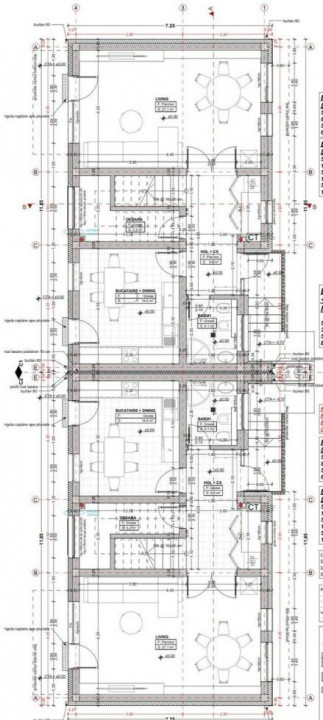
Compartimentare optimă pentru confortul zilnic
Parter:
• Living generos, luminos
• Bucătărie separată
• Baie de serviciu
• Hol de acces și spațiu de depozitare
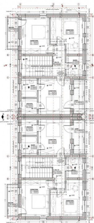
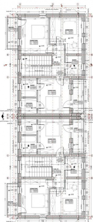
Etaj:
• 3 dormitoare luminoase; unul matrimonial cu baie proprie și dressing
• 2 băi
• Hol
• Logie + balcon
Suprafață utilă: 119,5 mp
Stadiu: La roșu – ideal pentru personalizare completă
Finalizare estimată: iulie 2026
Avantaje:
• Proiect mic, comunitate restrânsă
• Zonă aerisită, aproape de facilități (grădiniță, magazine, transport)
• Arhitectură modernă, orientată spre spațiu și lumină naturală
• Investiție potrivită atât pentru locuit, cât și pentru închiriere
ID Extern P146478