




Vă propunem spre vânzare o casă modernă, eficientă energetic și foarte bine echipată, situată în Florești, zona Tăuți, amplasată pe un teren de 377 mp, cu front la două străzi, oferind acces facil și intimitate.
Locuința are o suprafață utilă de 110 mp, fiind compartimentată inteligent pentru confortul unei familii.
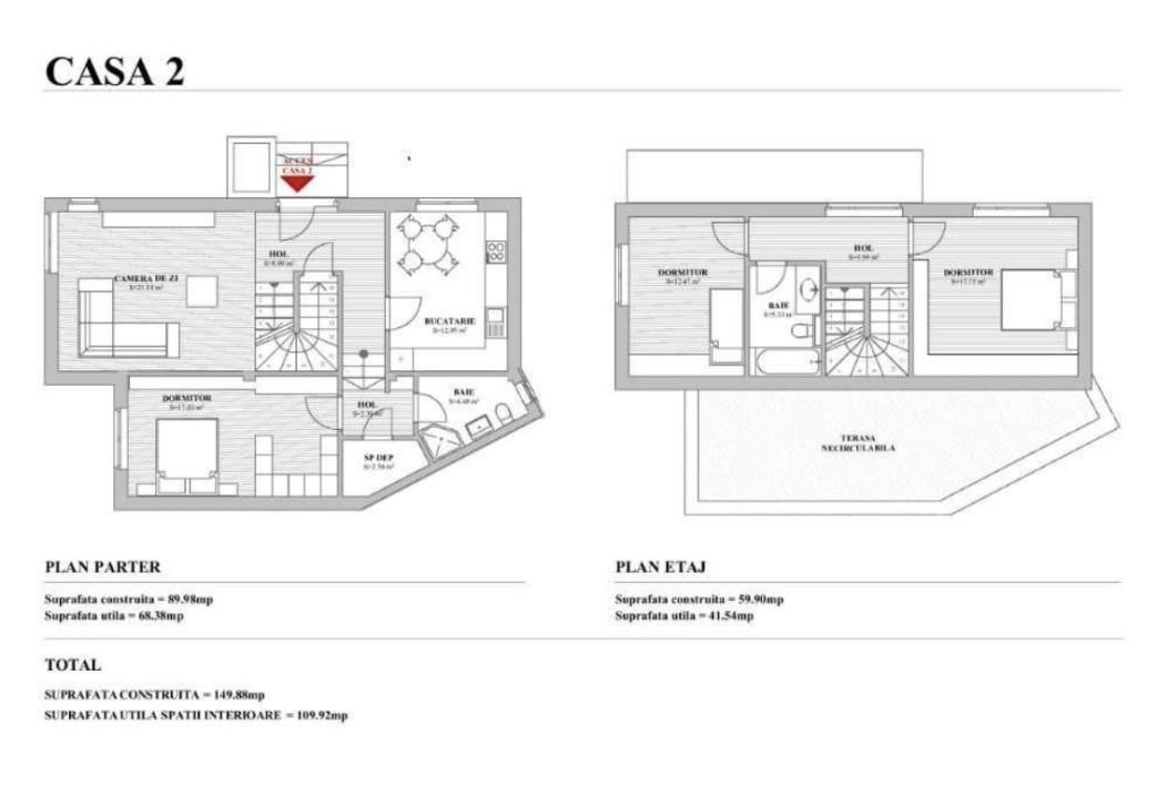
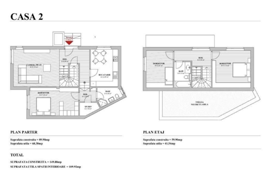
Compartimentare:
Parter
Living spațios
Bucătărie mobilată
1 dormitor
1 birou
1 baie
spații de depozitare
Etaj
2 dormitoare
1 baie
În plus, casa dispune de mansardă podificată, ideală pentru depozitare.
Dotări și facilități
Locuința este construită cu accent pe eficiență energetică și confort modern, fiind echipată cu:
Panouri fotovoltaice 10.5 kWp cu instalație trifazată, SmartGuard și baterie Huawei de 15 kW
Stație de încărcare auto electrică 22 kW Type 2 Huawei, cu opțiune de încărcare din surplusul produs de panouri
Încălzire în pardoseală automatizată, împărțită în 4 zone
Centrală termică cu boiler indirect și circuit de recirculare pentru apă caldă
Aer condiționat și ventilație cu recuperare de căldură în dormitoare și living
Izolație premium cu spumă, atât în acoperiș cât și în tavan (30 cm total)
Tehnologie și conectivitate
Rețea WiFi profesională Ubiquiti UniFi
Prize de rețea în fiecare cameră
Internet prin fibră optică (furnizori disponibili: Orange și Digi)
Sistem de supraveghere video 4K
Sistem de alarmă
Videointerfon cu automatizare pentru poarta pietonală
Exterior
Curtea este amenajată și funcțională:
Parcare pavată în curte (~100 mp)
Poartă auto automată
Padoc pentru câine
Instalație electrică în curte cu siguranță separată în tablou
Robinet exterior cu sistem anti-îngheț
Fosă septică (canalizarea este deja la poartă, urmând a fi pusă în funcțiune)
Alte informații
Băile sunt complet mobilate
Bucătăria este mobilată
Camerele sunt parțial mobilate
Casa este finisată, locuită și poate fi eliberată foarte rapid
Preț de vânzare: 270.000 €
O proprietate ideală pentru cei care își doresc o casă eficientă energetic, modernă și pregătită pentru viitor, într-o zonă liniștită, dar cu acces rapid către Cluj-Napoca.
ID extern: P153057