



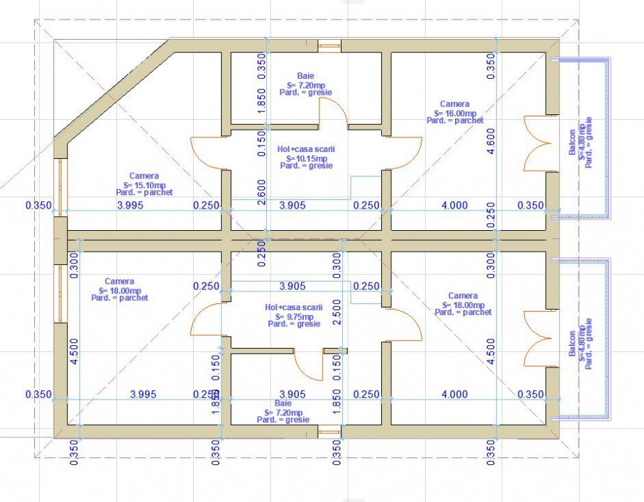
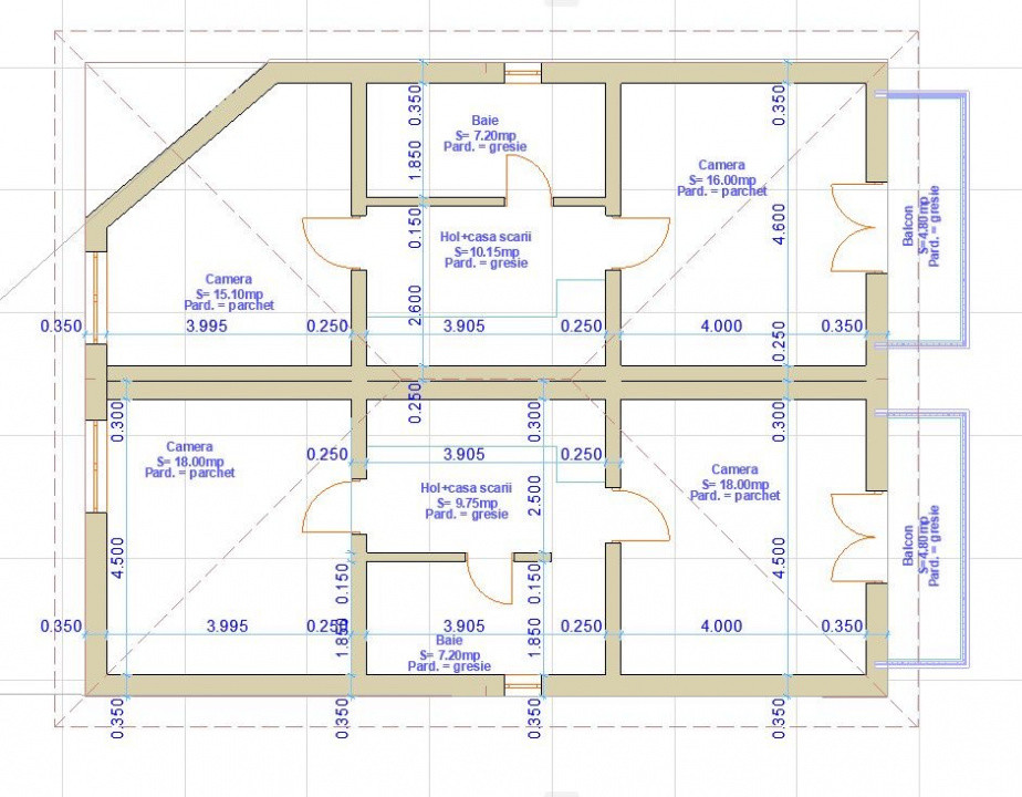
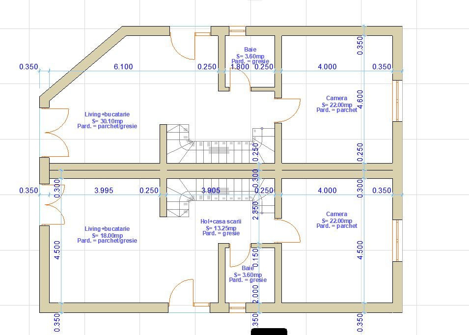
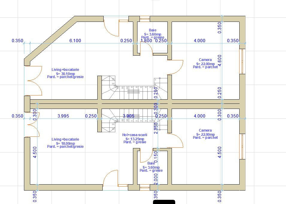
Vă propunem spre vânzare un duplex modern, situat pe strada Fagului, Florești, într-o zonă liniștită și bine conectată la punctele de interes.
Imobilul are o suprafață utilă de 120 mp, compartimentată eficient, astfel:
Living spațios cu bucătărie open-space
3 dormitoare luminoase
2 băi
Balcon
Pod destinat depozitării
Duplexul este dotat cu încălzire în pardoseală, oferind confort termic sporit, geamuri termopan tripan pentru izolație excelentă și acoperiș din țiglă ceramică, asigurând durabilitate și un aspect elegant.
Proprietatea este ideală pentru o familie care își dorește confort, spațiu și o locație bună într-o zonă în plină dezvoltare.
Preț de vânzare: 170.000 €
Pentru mai multe informații sau programarea unei vizionări, nu ezitați să mă contactați.
ID extern: P146943