






Vă propunem spre vânzare o casă individuală situată într-o zonă liniștită din Chinteni, pe o stradă înfundată, ideală pentru familiile care își doresc intimitate și siguranță.
Suprafață teren: 505 mp
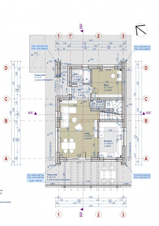
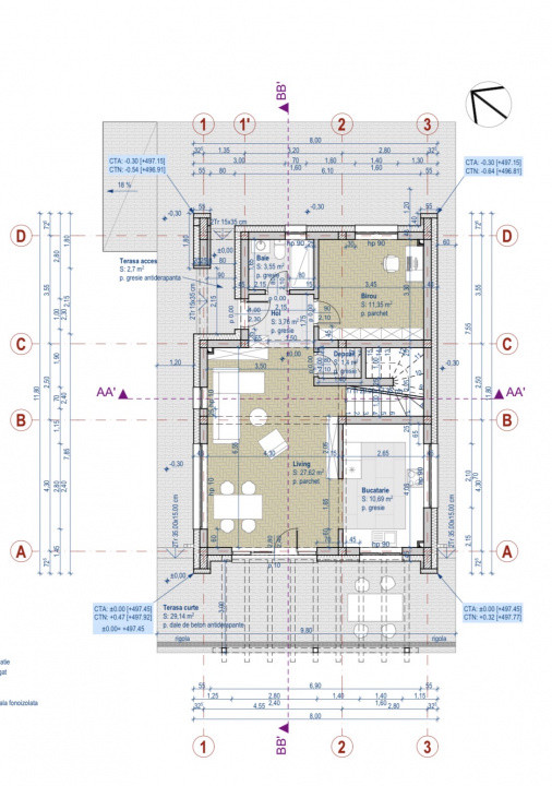
Suprafață utilă: 119,5 mp
Compartimentare:
Parter: living generos open-space cu bucătăria, birou, baie
Etaj: 3 dormitoare (dintre care unul cu baie proprie), încă o baie spațioasă
Curtea este amenajată cu gazon și oferă zonă pentru parcare pavata, asigurând atât estetică, cât și funcționalitate.
Casă modernă, bine compartimentată, potrivită pentru o familie care caută liniște, spațiu și confort la doar câțiva pași de Cluj.
Preț: 225.000 €
ID extern: P141520