







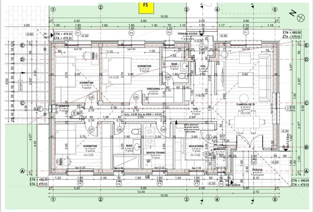
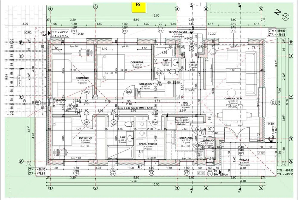
GreenCasa imobiliare va propune spre vânzare casa unifamiliala pe un singur nivel avand suprafata utila de 105mp +terasa 10mp la care se adauga 65 mp utili care se pot amenaja in podul existent (se vede in poze), inaltimea utila a podului este de 2.65m. In total se pot amenaja 170mp utili.
Casa se afla la stadiul de constructie la rosu si se afla intrare in Chinteni intr-o zona in plina dezvoltare. Casa este compartimentata astfel:
- 1 dormitor matrimonial dotat cu dressing si baie proprie in suprafata totala utila de 20 de mp
- 2 dormitoare cu suprafata utila de 11,25mp si respectiv 11,45mp
- Living + dining cu suprafata utila de 25mp
- Bucatarie + camara in suprafata totala utila de 9,15mp
- Baie comuna cu suprafata utila de 5.8mp
- Spatiu tehnic (spalatorie/uscatorie/centrala termica) cu suprafata de 6,10mp
- Debara cu suprafata de 2mp
- Terasa exterioara de aproximativ 10mp
- Pergola exterioara pentru parcare masina + alte 2 locuri de parcare in curte
- sistem de irigatie
Suprafata terenului este de 500mp, iar curtea va avea o suprafata utila de 300mp
Casa va fi dotata cu:
-Tamplaria exterioara va fi de tip VEKA cu geam tripan, profil 7 camere
-Sistem de incalzire prin pardoseala
Structura casei va fi din caramida Cemacon iar izolatia va fi din polistiren de 15cm grosime EPS100
Podul se va putea utiliza avand o suprafata utila de 65mp, la cerere se poate compartimenta Acoperisul este realizat din tigla ceramica de culoare gri
Casa va fi la standarde nZEB si va fi dotata cu priza pentru incarcare masini electrice. La acest pret se mai adauga 25000 euro pentru panouri fotovoltaice si pompa de caldura sau se poate opta sa fie montate de viitorul proprietar.
Casa se va preda la stadiul de semifinisat la interior, iar la exterior va fi finisat cu tencuiala decorativa si piatra naturala. Se vor realiza amenajarile exterioare si imprejmuirea.
Casa va fi racordata la toate utilitatile: gaz, apa-canal, energie electrica.
Pentru mai multe detalii nu ezitați să ne contactați.
Id extern: P132357