





Vă propunem spre vânzare o construcție modernă cu parter și etaj, realizată din pereți de cărămidă și termoizolată la exterior, proiectată în conformitate cu standardul NZEB (clădire cu consum de energie aproape zero).
Proprietatea este amplasată într-o zonă liniștită, la doar 10 minute cu mașina de Iulius Mall și 5 minute de hubul educațional și complexul de natație Borhanci, oferind acces rapid la principalele puncte de interes din oraș. Baza sportivă Gheorgheni se află, de asemenea, la numai 7 minute distanță.
În prezent, imobilul se află în stadiul “la roșu”, cu posibilitatea de a fi achiziționat și în stadiul semifinisat, oferind viitorilor proprietari libertatea de a-și personaliza finisajele după propriul gust.
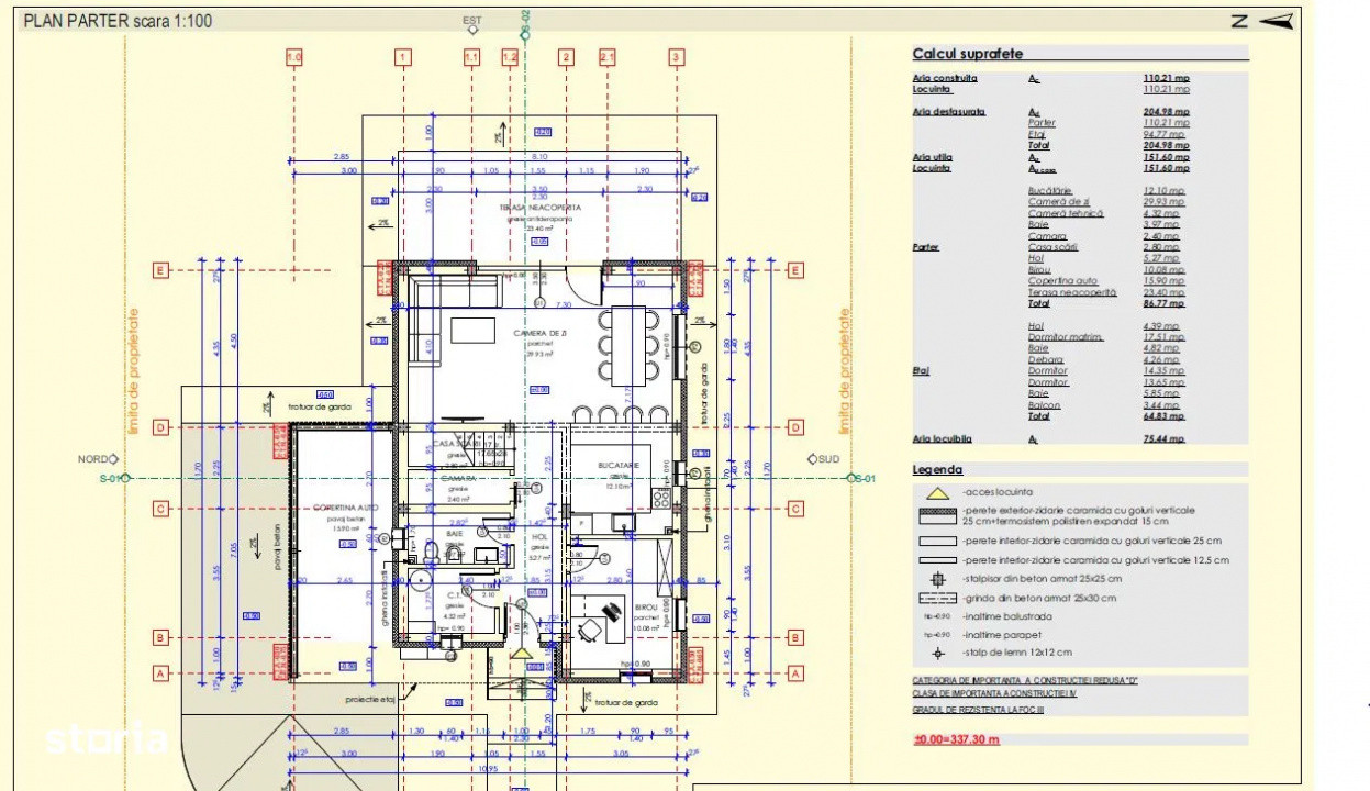
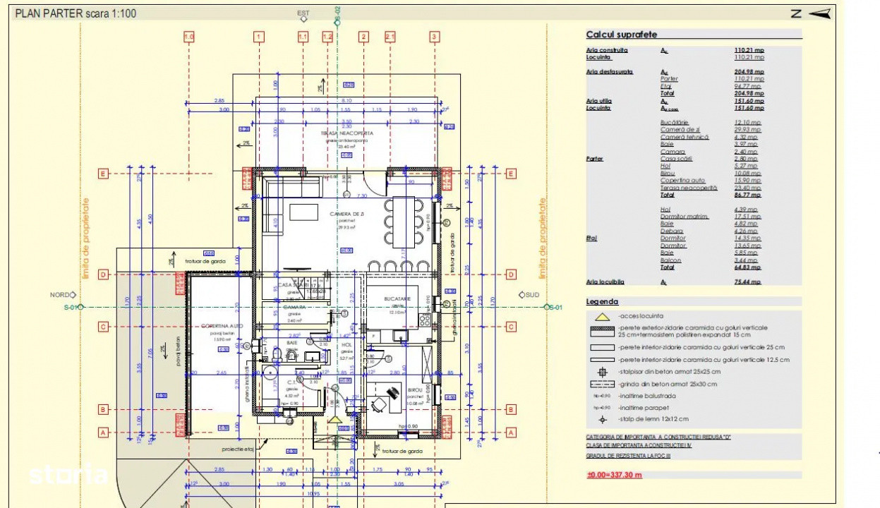
La parter, locuința dispune de cameră tehnică, baie, birou, precum și un living generos cu bucătărie open-space și ieșire pe o terasă de 23,4 mp.
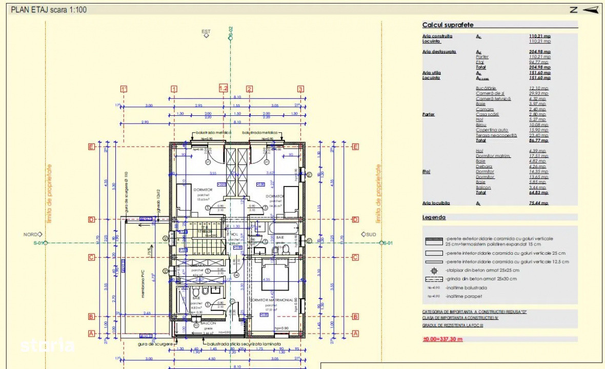
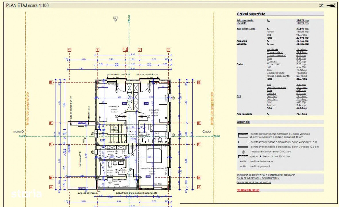
La etaj, se regăsesc două dormitoare, un dormitor matrimonial cu dressing, baie și balcon.
Un proiect ideal pentru cei care caută confort, eficiență energetică și proximitate față de facilitățile urbane.
Preț la roșu: 390.000 euro
Preț la semifinisat: 495.000 euro
ID extern: P144126