





Vă propunem spre vânzare 2 unități tip duplex, moderne și spațioase, situate într-o zonă liniștită și bine conectată, pe strada Tineretului.
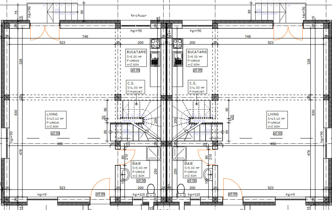
Suprafață utilă: 160 mp
Teren: 200 mp / unitate
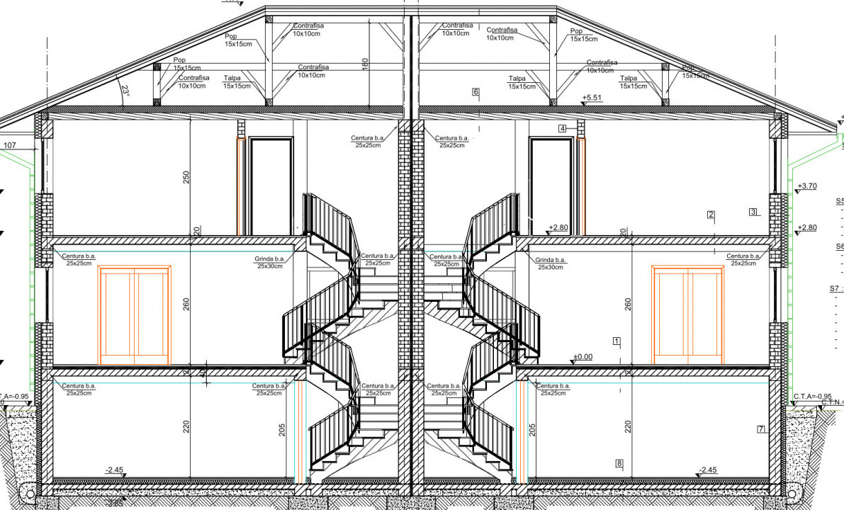
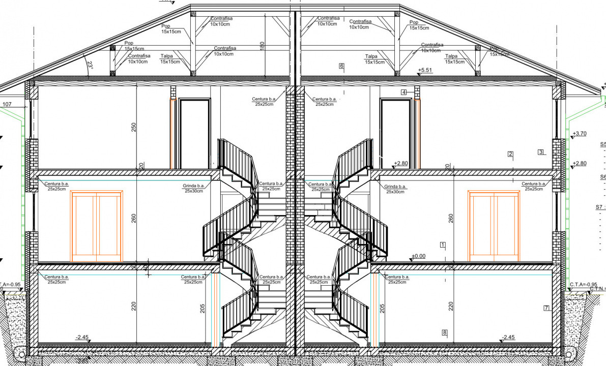
Regim de înălțime: D+P+1+pod
Compartimentare inteligentă și funcțională:
Demisol: garaj, cameră tehnică / depozitare
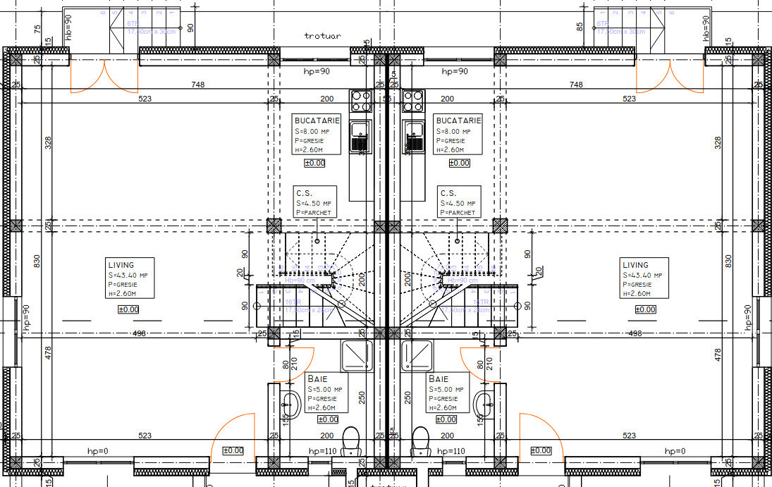
Parter: living cu bucătărie open-space, baie
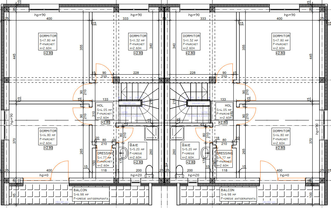
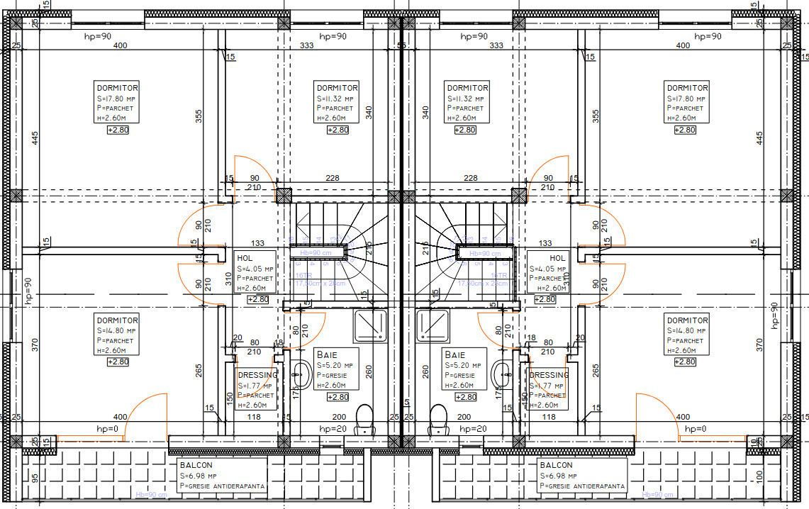
Etaj: 3 dormitoare, 1 baie, dressing, balcon
Mansardă: pod de depozitare
Dotări și beneficii:
Încălzire în pardoseală
Geamuri tripan pentru eficiență termică și fonică
Țiglă ceramică
Izolație exterioară de 15 cm pentru un confort optim
Predare: Iulie 2026
Preț: 195.000 € + TVA
O locuință ideală pentru familii, ce îmbină confortul, spațiul generos și materialele de calitate.
ID extern: P141327