






GreenCasa imobiliare va propune spre vânzare duplex în spate la vivo , panorama deosebită.
Locație excelentă: Stradă pietruită, la doar 5 minute de viitoarea stație de autobuz de pe strada Răzoare.
Disponibilitate:
-4 unități de 197 mp – predare în decembrie 2025/ martie 2026 în funcție de nevoia clientului
Posibilitate de finisare la cerere
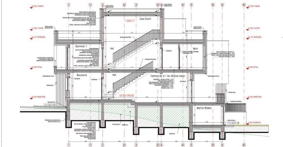
Caracteristici și dotări:
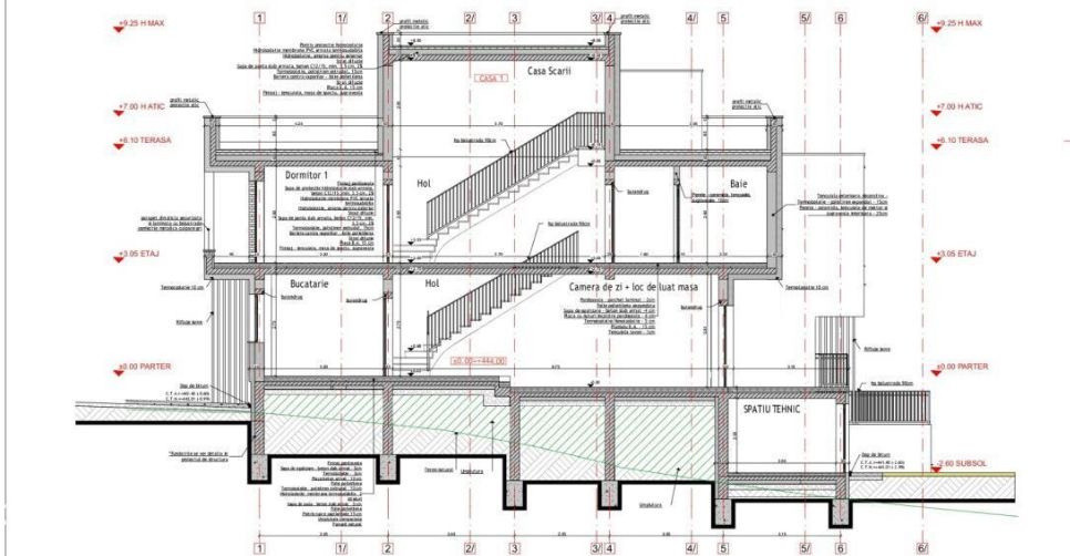
- Sistem de încălzire în pardoseală
- Pompă de căldură + 4 kW panouri solare
- Termosistem premium: 15 cm pereți, 20 cm terasă
- Ferestre Salamander tripan, baghetă caldă
- Subsol – 80 mp Spatiu tehnic, de depozitare, locuibil la cele de 195 mp (2,7 m înălțime)
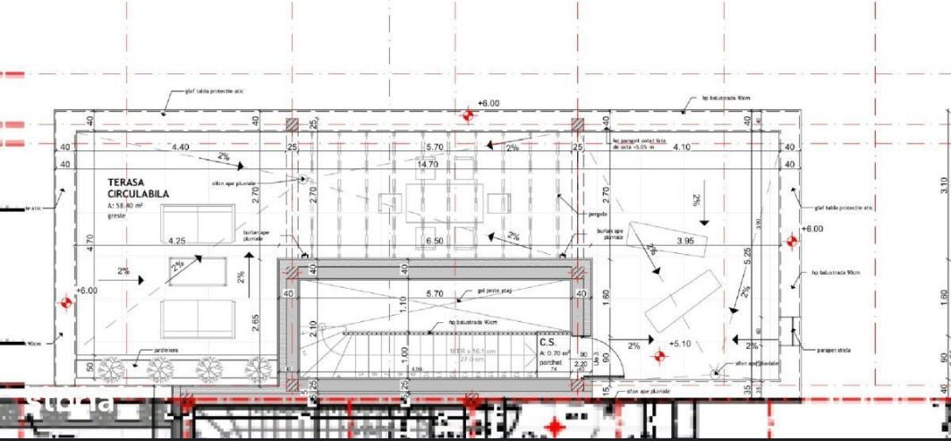
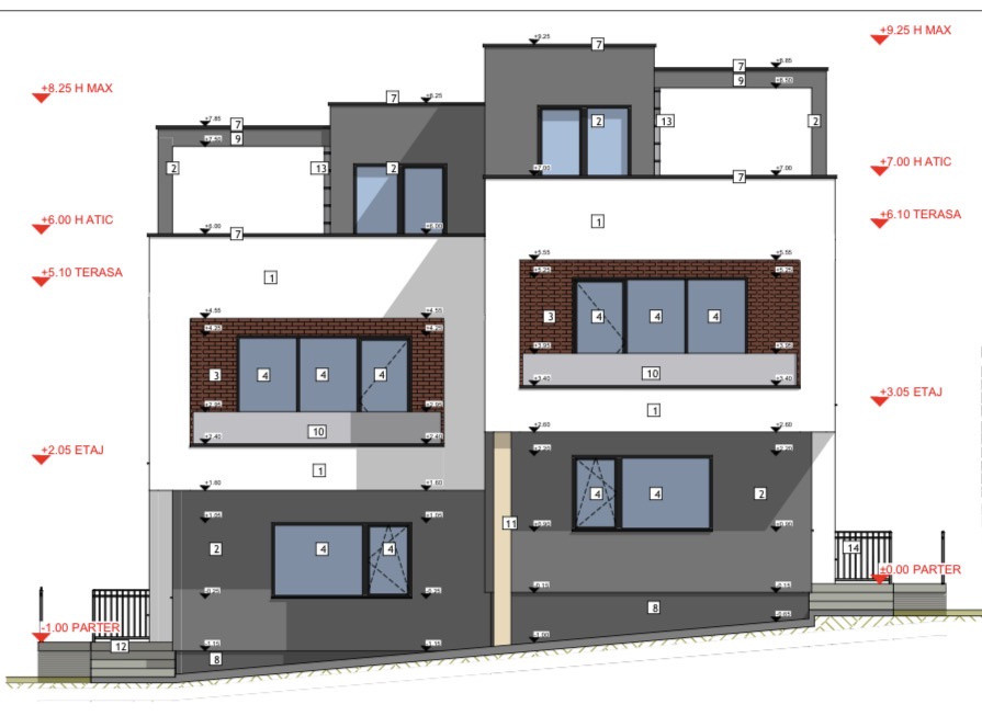
- 80 mp de terase pe unitate, 60 mp terasa panoramica peste ultimul nivel
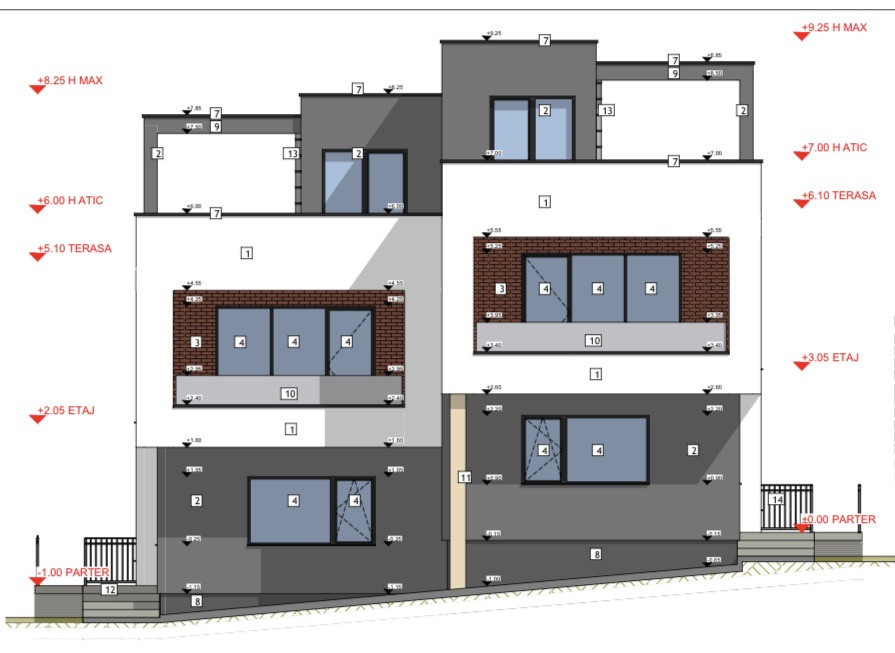
- Curte amenajată: pavaj, gazon semănat, copaci plantați
- Garduri din lemn între proprietăți, poartă și panouri metalice la stradă
GreenCasa vă asigură servicii de creditare la cele mai bune dobânzi și în cel mai scurt timp, prin divizia GreenCasa Broker, partener oficial Kiwi Finance.
Id extern: P132021