








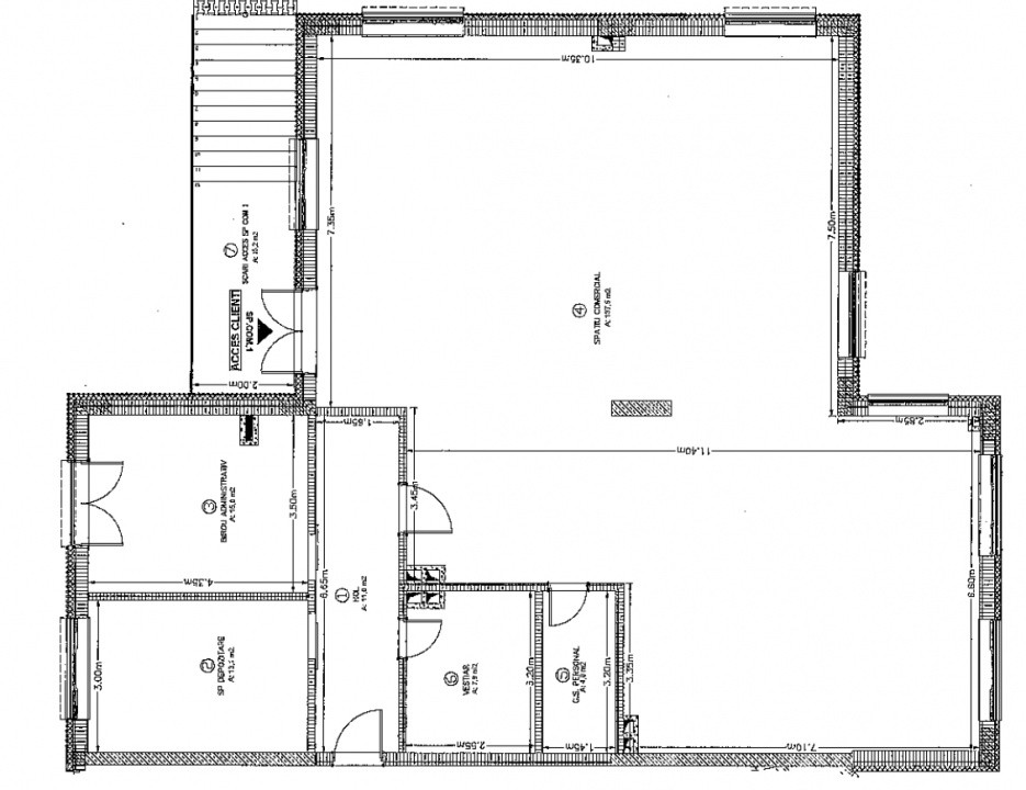
GreenCasa Imobiliare vă propune spre închiriere un spațiu comercial modern, cu o suprafață utilă de 197,5 mp, situat în zona Eroilor, Florești, parte a unui ansamblu rezidențial nou, format din 8 blocuri.
Spațiul beneficiază de compartimentare open-space, completată de 2 camere și o baie, având flexibilitatea de a fi compartimentat după nevoile viitorului chiriaș. Dispune de 2 intrări (prin casa scării și direct din parcarea exterioară), cu posibilitatea de a realiza și o a treia intrare prin partea din spate a blocului.
Dotările includ încălzire în pardoseală cu 2 serpentine, vitrine mari cu expunere la strada principală, ziduri exterioare de 30 cm cu termosistem de 15 cm, asigurând eficiență energetică și confort.
Chiria este de 12 €/mp + TVA, iar spațiul este disponibil și spre vânzare. În preț sunt incluse și 2 locuri de parcare cu CF individual.
Pentru mai multe detalii sau pentru programarea unei vizionări, vă rugăm să ne contactați.
P139700