
Va prezentam o oportunitate de achizitie a unei locatii comerciale, care se preteaza la servicii medicale, alte servicii sau magazin de prezentare. Acces facil direct la Calea Manastur sau din strada Primaverii.
Pretul este negociabil si proprietarul este dispus la diferite variante de plata si/sau parteneriat.
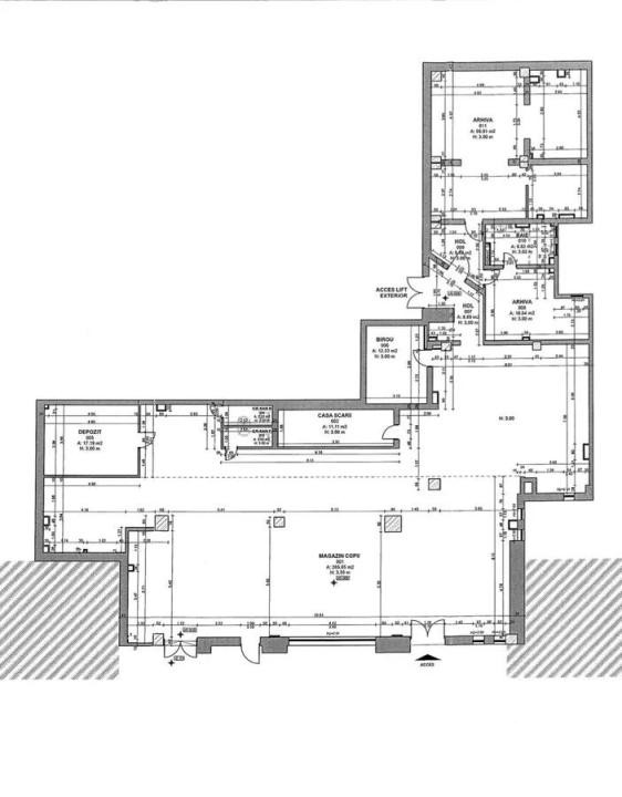
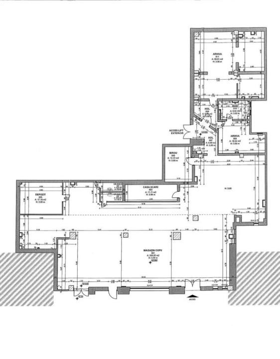
Spatiul are in total 406 mp si este compartimentat in doua zone, cu CF-uri distincte:
a) 223 mp spatiu utilitate comerciala cu anexe grupuri sanitate, casa scari acces parcare in spatele cladirii (parcarile sunt domeniu public si se preteaza la inchiriere de la Primaria Cluj Napoca)
b) 183 mp cu destinatie magaziim lift, birou, spalatorie, cu utilizare diversa.
Inaltimea utila este de peste 3,50 m si se preteaza inclusiv la autorizare activati medicale.
Pentru mai multe detalii asteptam telefonul dumneavoastra.
ID extern: P154154