



Oferim spre vanzare teren autorizat pentru casa individuala P+1 in ansamblu de 4 case individuale cu acces privat zona IL Milanese Floresti .
Terenul are o suprafata de 300mp si se vinde cu autorizatie de constructie valabila.
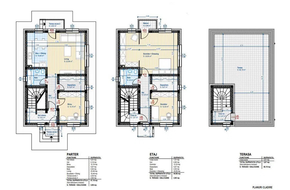
Constructia va avea o suprafata utila de 132mp plus terasa circulabila de 60mp
Datorita compartimentarii , casa se poate imparti in 2 apartamente.
• Parter:
• Living spațios
• Bucătărie modernă
• Dormitor confortabil
• Baie elegantă
• Dressing generos
• Hol luminos și casa scărilor
• Etaj:
• Dormitor principal cu dressing
• Baie rafinată
• Hol plin de lumină
• Dormitor suplimentar cu dressing și balcon de 33 mp utili (poate fi împărțit în două dormitoare, dacă se dorește)
• Terasa (ultimul nivel):
• 60 mp circulabili
ID Extern P149462