






Vă propunem spre vânzare un teren intravilan pentru construcție casă, situat într-o zonă deosebită din Feleacu, recunoscută pentru liniște, aer curat și panoramă impresionantă asupra orașului Cluj-Napoca. Amplasarea într-un cartier de case noi oferă intimitate și un cadru ideal pentru o locuință premium.
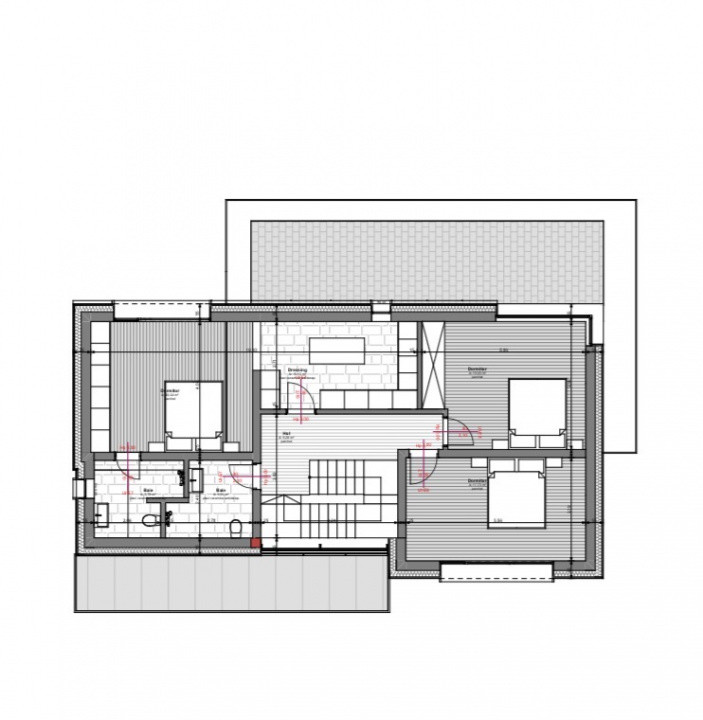
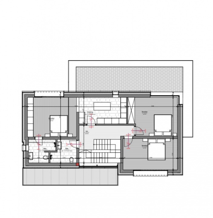
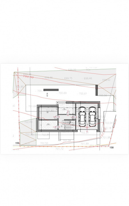
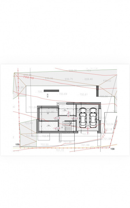
Terenul are o suprafață de 701 mp, cu front stradal de 22 ml, caracteristici excelente pentru edificarea unei case moderne. Proprietatea se vinde împreună cu un proiect de casă cu arhitectură contemporană, aflat în curs de autorizare, gândit pentru a valorifica priveliștea și orientarea terenului.
Autorizația de construire este estimată a fi emisă în perioada ianuarie–februarie, oferind viitorului proprietar posibilitatea de a începe construcția într-un timp scurt, fără etapele birocratice consumatoare de timp.
Localizarea asigură acces facil către Cluj-Napoca, fiind ideală pentru cei care își doresc să locuiască aproape de oraș, dar într-un mediu natural și liniștit.
Preț de vânzare: 235.000 €
O oportunitate excelentă pentru realizarea unei locuințe moderne, într-una dintre cele mai apreciate zone din apropierea Clujului.
ID extern: P147136