







Va propunem spre vanzare duplex, in cartierul Voronet , complex rezidential ce iti ofera o priveliste deosebita catre oras.
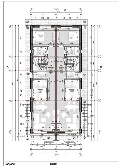
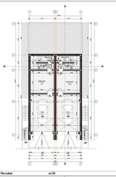
Duplexul are o suprafata utila de 202 mp cu garaj si camera tehnica, fiind compus din :
- demisol cu garaj, camera tehnica ( spatiu ce poate fi convertit in spatiu de locuit , sala de sport, atelier s.a.m.d ) , + debara totalizand 60 mp
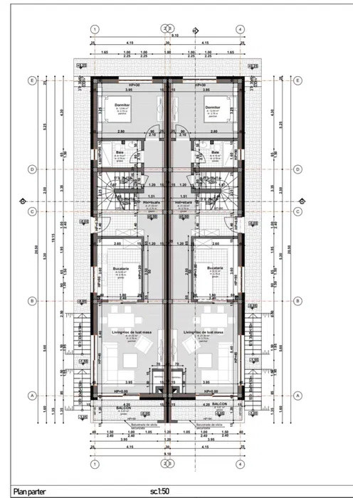
- parter: living cu bucatarie open-space avand acces la o terasa de 5 mp cu priveliste catre oras, hol, un dormitor, o baie .
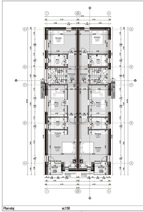
- etaj: dormitor matrimonial cu dressing, baie proprie si terasa , hol, un dormitor, un spatiu destinat biroului (care poate fi un al patrulea dormitor) si baie.
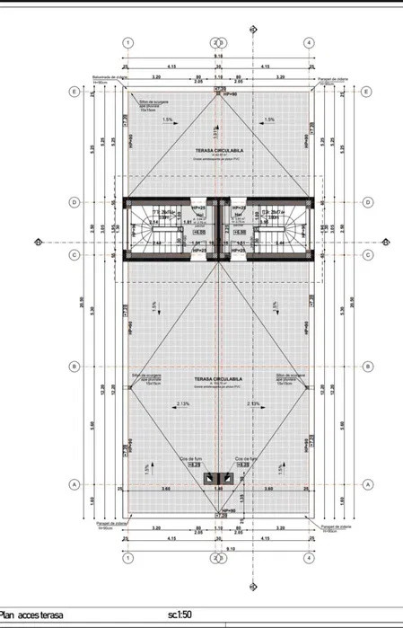
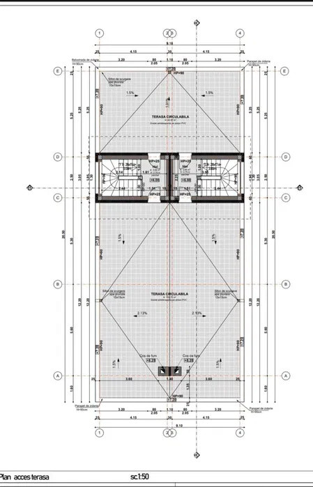
- rooftop de 72 mp cu o priveliste deosebita, fata-spate , prevazut cu puncte de apa rece apa calda, prize - pe ambele parti pentru bar, piscina sau spatiu de relaxare .
Casa Nzeb cu izolatie polistiren de 20 de cm , centrala pe gaz Vaillant , incalzire in pardoseala cu garantie 10 ani , panouri fotovoltaice 5 kw, curent trifazic, aer conditionat .
Dotari extra:
- tamplarii premium pvc tripan Veka 82 four seasons
- posibilitate semineu (cosul de fum este facut, semineul poate fi realizat ulterior de catre cumparator daca se doreste)
- terasa rooftop beneficiază de o izolație superioară cu polistiren de 20 cm, barieră de vapori, șapă de 10 cm, două straturi de membrană și hidroizolație bituminoasă Bauder
Constructia este facuta din caramida Porotherm de 25 cm, instalatii electrice si sanitare de calitate . Dispun de poze, videouri la toate etapele pe toata durata constructiei.
Construit pe un teren de 300 mp, cu o curte libera de 180 mp.
Usa de garaj automatizata , circuit priza reincarcare pentru masinile electrice. Posibilitate de a parca 2 masini , una in garaj si una in fata casei . Spatiu de la parter convertibil si in spatiu de locuit , sala de sport , atelier s.a.m.d
Casa se afla in vecinatatea imediata a parcului pe o straduta linistita, capat de linie, fara vizavi, avand orientare sud-vest, la 100 de m de strada principala, langa statia de autobuz si la 5 min de statia de tramvai .
ID extern: