Imagine 104

Imobil versatil în centrul Clujului – ideal investiție

ID: P155310 Cluj-Napoca, Centru 13
595.000€
Descriere
Proprietate situată pe strada Horea, la doar 5 minute de mers pe jos de centrul orașului Cluj-Napoca, într-o zonă extrem de bine cotată, cu acces rapid la facultăți, restaurante și cafenele.

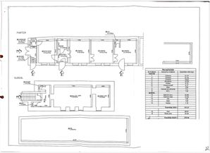
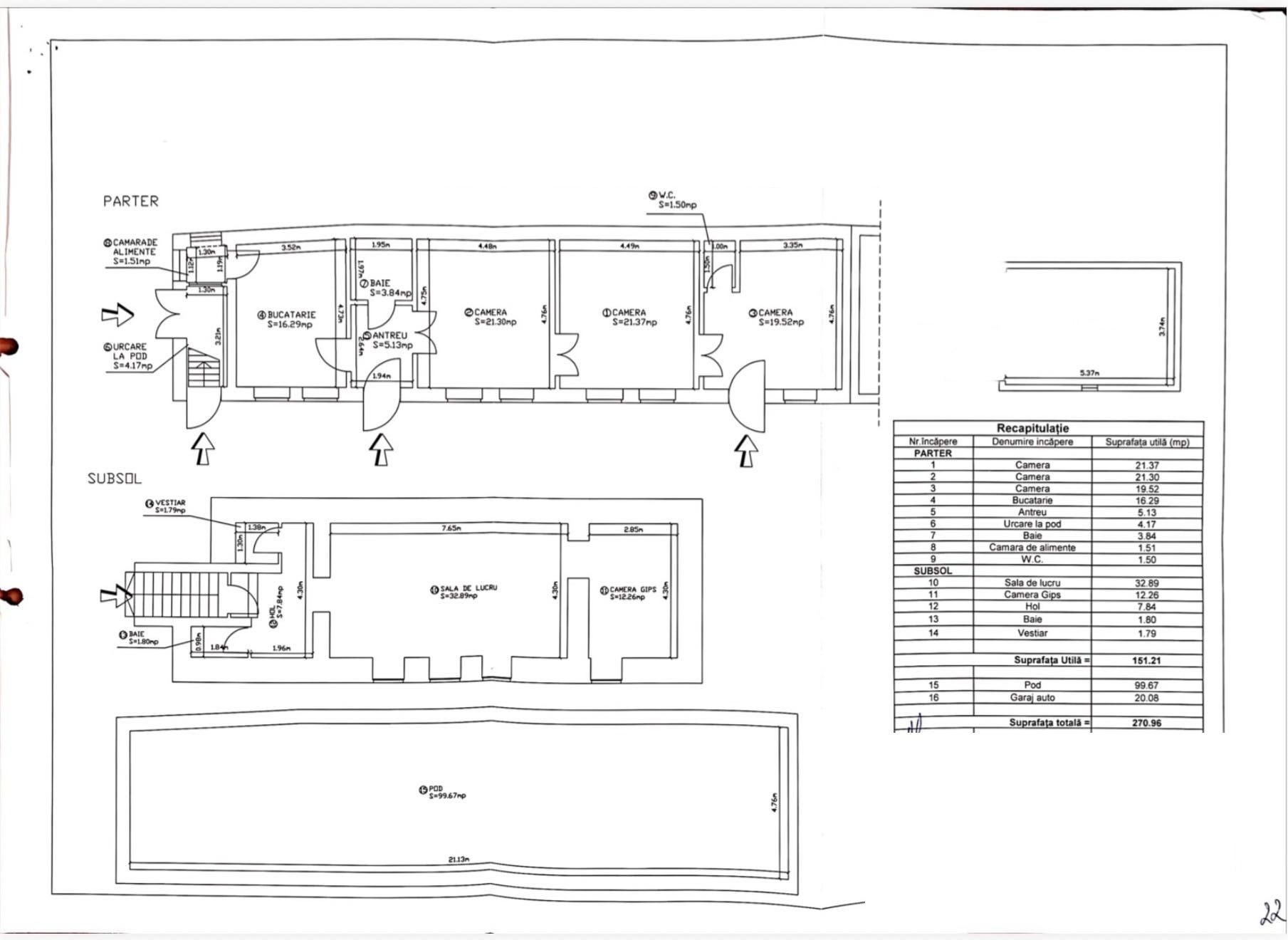
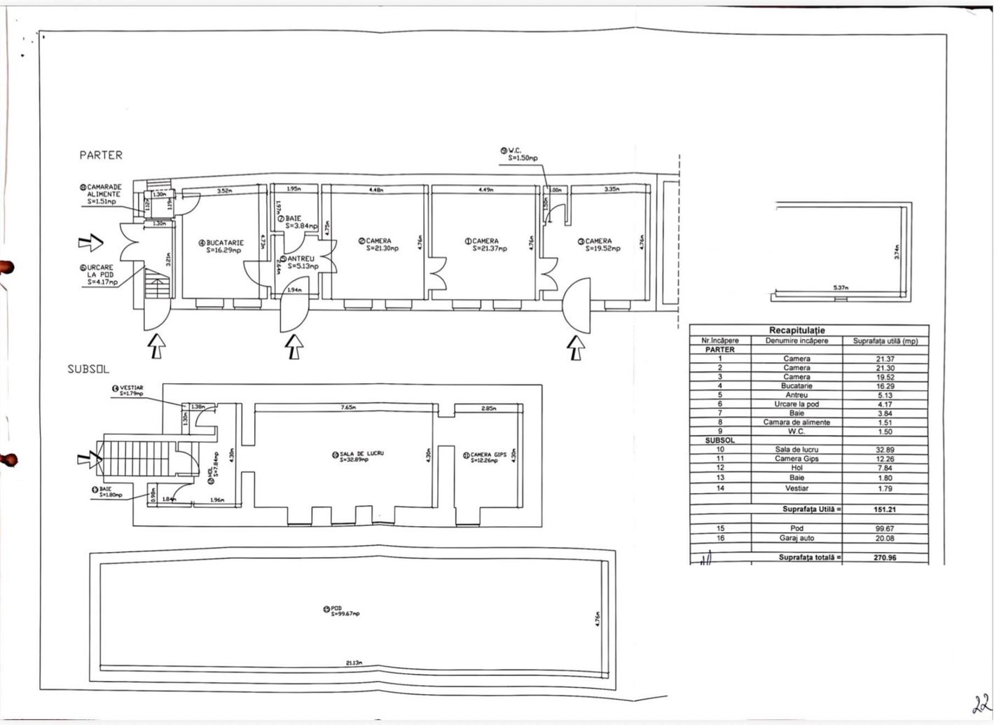
Imobilul are o suprafață totală de 270 mp și este compartimentat astfel:

-parter: 120 mp
-demisol: 50 mp
-pod: 100 mp (nefinisat, cu potențial de amenajare)

Construcția este bine izolată fonic, oferind liniște, fără zgomotul stradal specific zonei centrale.

Caracteristici și dotări:

-6 camere complet renovate și mobilate
-4 băi moderne, recent refăcute
-parter complet renovat în 2025
-demisol parțial renovat
-centrală termică nouă cu boiler de 300L, complet automatizată
-acoperiș nou (învelitoare din țiglă recent înlocuită)
-multiple spații de depozitare

-Imobilul oferă flexibilitate ridicată în utilizare:

-poate funcționa ca o singură proprietate
-sau poate fi împărțit în 5 unități separate, fiecare cu acces individual din curtea interioară

Podul de 100 mp poate fi amenajat și valorificat suplimentar (apartament, birou etc.).

Utilizare actuală și potențial:
Proprietatea este folosită în prezent în regim hotelier și poate genera un venit minim estimat de 3.000 euro/lună din chirii.

Se pretează excelent pentru:
-regim hotelier / Airbnb
-locuință multifamilială
-birouri
-clinică medicală sau cabinet stomatologic / laborator dentar

Pentru mai multe detalii sau pentru programarea unei vizionări, vă rugăm să ne contactați.

P155310
Caracteristici
  • ID:P155310
  • Nr. camere:6
  • Nr. dormitoare:6
  • S. utila:170.00 mp
  • S. teren:50.00 mp
  • Nr. bucatarii:2
  • Nr. bai:4
  • An renovare:2025
  • Structura rezistenta:Beton
  • Regim inaltime:D+P
Specificatii
Curent
Apa
Canalizare
Gaz
Centrala proprie
Izolatie Exterior
Vopsea lavabila
Parchet
Usa interior Lemn
Spatiu depozitare
WC Serviciu
Bucatarie Mobilata
Bucatarie Utilata
Complet mobilat
Localizare
Dănuț Breha
Manager
Esti interesat de aceasta proprietate ?
Proprietati similare
TOP 0% comision De vanzare Imagine 7114
Vilă superbă, 328mp utili, D+P+E, garaj, piscină, SPA, fitness
Chinteni, Central 580.000€
5 camere 4 bai 328mp
TOP De vanzare Imagine 8752
Casa - Vila de lux Gruia-Cluj Napoca
Cluj-Napoca, Gruia 599.000€ 640.000€
6 camere 3 bai 240mp
TOP 0% comision De vanzare Imagine 2018
Vilă modernă, 6 camere, Iulius Mall, Gheorgheni
Cluj-Napoca, Gheorgheni 650.000€ 750.000€
6 camere 4 bai 212mp
De vanzare Imagine 8270
Casa super-finisata in cartierul Buna Ziua, Cluj-Napoca, tip duplex
Cluj-Napoca, Buna-Ziua 576.000€
4 camere 137mp
0% comision De vanzare Imagine 8132
Casa unifamiliala noua in zona restaurantului Aroma, Cluj-Napoca
Cluj-Napoca, Buna-Ziua 575.000€
5 camere 4 bai 220mp
De vanzare Imagine 7778
Proprietate exclusivistă, Design modern, View spectaculos, Dezmir
Dezmir, Central 600.000€
8 camere 3 bai 298mp