












Vă propun spre vânzare un teren intravilan cu suprafața de 970 mp, având un front generos de 31 ml, situat într-o zonă liniștită, în apropiere de strada Ion Creangă, la intrarea în localitate.
Avantaje teren:
Autorizație de construire obținută pentru 2 case alipite prin garaje
Utilități pe parcelă: apă, canalizare, curent
Orientare Sud-Est, ideală pentru lumină naturală pe tot parcursul zilei
Panoramă deosebită, neobturabilă de construcții viitoare
Zonă aerisită, în dezvoltare
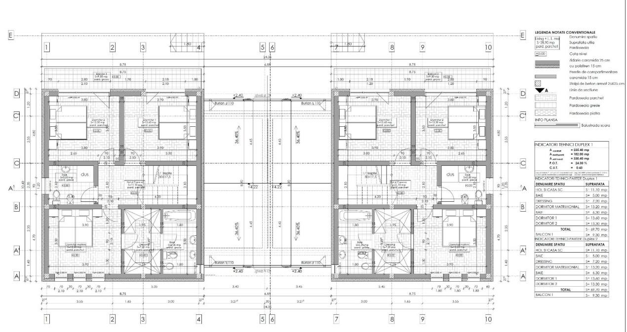
Detalii proiect autorizat (pentru fiecare casă):
Suprafață utilă: 165 mp
Terasă: 24 mp
Balcon: 10 mp
Compartimentare:
Parter:
Living + bucătărie + zonă de dining
Dormitor / birou
Baie
Hol + casa scării
Garaj
Etaj:
Dormitor matrimonial cu dressing și baie proprie
2 dormitoare
Baie
Hol / casa scării
Preț: 145.000 €
Opțiune: Deschis și pentru asociere în vederea construirii caselor
ID extern: P153484