












Se oferă spre vânzare teren cu suprafața de 598 mp, având front generos de 19,2 m, ideal pentru dezvoltare rezidențială sau mixtă, cu Autorizație de Construire obținută.
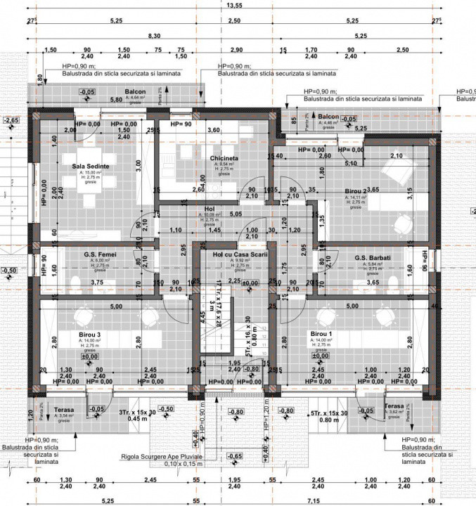
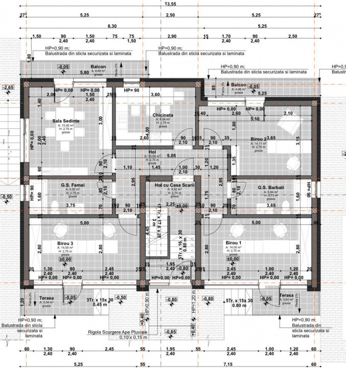
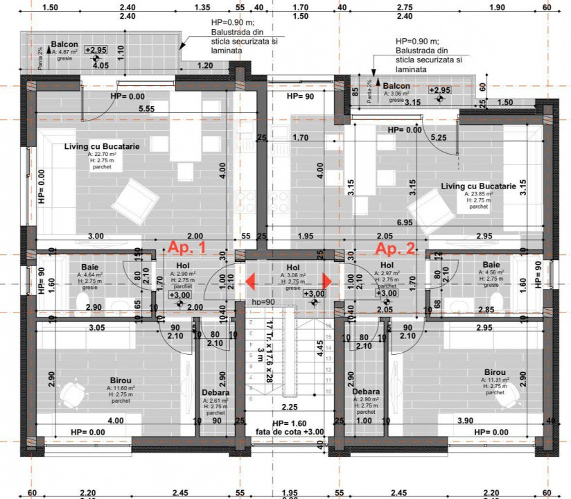
Proiectul autorizat prevede o clădire cu regim de înălțime S+P+E+Pod, cu următoarea compartimentare:
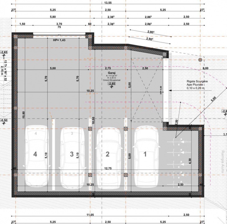
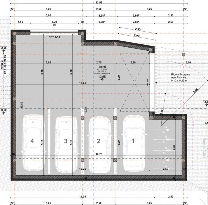
Subsol: 4 locuri de parcare subterane
Parter: spațiu comercial
Etaj + Pod: 2 apartamente, fiecare cu 90 mp utili
Proprietatea oferă flexibilitate investițională, existând posibilitatea de reautorizare pentru duplex sau casă individuală, în funcție de strategia viitorului proprietar.
Suprafață teren: 598 mp
Front stradal: 19,2 m
Autorizație de construire valabilă
Destinație mixtă – comercial & rezidențial
Parcare subterană inclusă
Potențial ridicat de valorificare
Preț de vânzare: 315.000 €
O oportunitate excelentă pentru dezvoltatori sau investitori care caută un teren cu documentație clară și potențial multiplu de dezvoltare.
ID extern: P147178