













Vă propunem spre vânzare o casă unifamilială deosebită, situată într-o zonă foarte liniștită din partea inferioară a cartierului Dâmbul Rotund, pe un teren generos de 764 mp. Proprietatea beneficiază de acces facil la mijloacele de transport în comun – stațiile Făgăraș și Trandafirilor (liniile 31 și M31), respectiv Partizanilor (linia 56) – oferind astfel un echilibru ideal între liniște și conectivitate urbană.
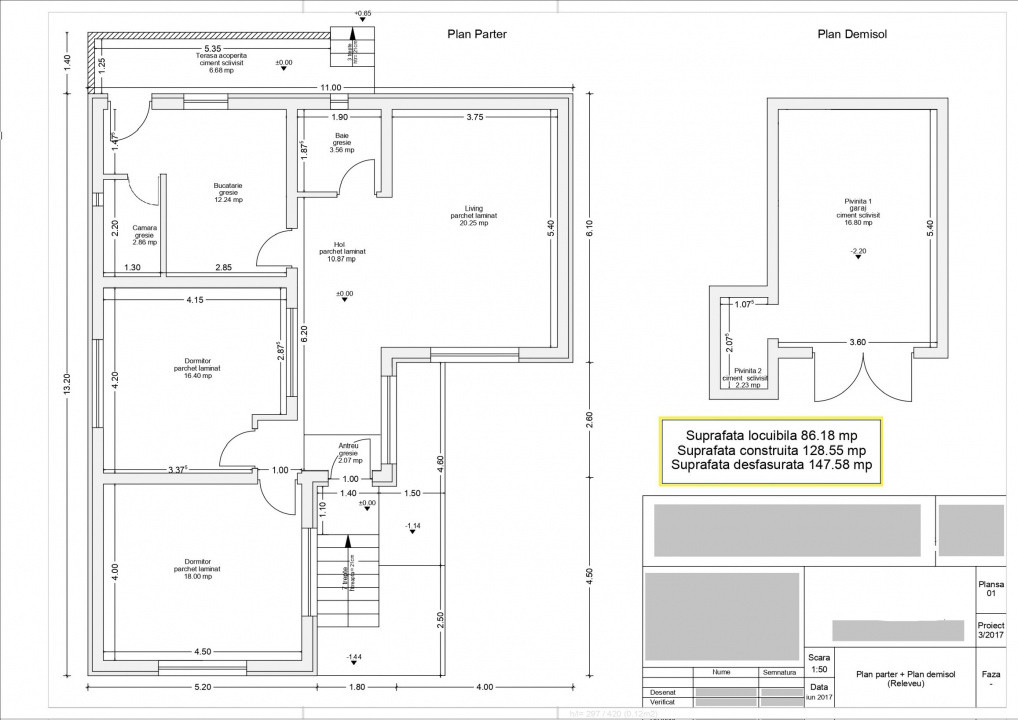
Casa, construită solid în sistem de pereți portanți din cărămidă plină, pe fundații continue din beton armat, are acoperiș cu șarpantă de lemn și învelitoare din tablă cutată. Regimul de înălțime este D+P, iar suprafețele sunt următoarele:
Suprafață înscrisă în CF: 113 mp
Suprafață desfășurată: 147,58 mp
Suprafață locuibilă: 86,18 mp
Proprietatea este cadastrată și are situație juridică clară.
Compartimentare:
Demisol (la nivelul străzii și al curții): garaj și pivniță
Parter: living spațios și luminos, două dormitoare decomandate, hol, bucătărie cu cămară și baie
Toate încăperile sunt prevăzute cu ferestre termopan, asigurând iluminare naturală abundentă și ventilație eficientă.
Confort și finisaje:
Casa dispune de încălzire centrală pe gaz (centrală Viessmann și radiatoare din aluminiu) și este complet termoizolată – cu termosistem din polistiren pe exterior și panouri din spumă poliuretanică (60 mm) la tavane.
Finisajele au fost modernizate integral în 2018, folosindu-se materiale de calitate:
pardoseli: parchet laminat triplustratificat pentru trafic intens în living, dormitoare și hol; gresogranit în bucătărie, baie, cămară și antreu
zugrăveli: vopsea lavabilă albă în camere, hol, bucătărie și cămară; vopsea rezistentă la umezeală în baie și zona de gătit
Dotări și mobilier:
Proprietatea se vinde complet mobilată și utilată, oferind tot confortul necesar unei locuințe moderne:
Aer condiționat în zona livingului și holului
Bucătărie complet echipată: mașină de spălat vase, plită pe gaz, cuptor electric, hotă, frigider mare, cuptor cu microunde
Cămară utilată: mașină de spălat rufe și uscător de capacitate mare
Toate piesele de mobilier sunt personalizate, adaptate perfect spațiului.
Curtea și grădina:
Exteriorul este amenajat complet, oferind o ambianță plăcută și funcțională:
În fața casei, o grădină verde și o zonă pavată bicolor, care permite parcarea a până la 4 mașini
În spate, o grădină generoasă, ideală pentru relaxare și activități în aer liber:
mică livadă cu pomi fructiferi (inclusiv un cireș spectaculos și un dud alb memorabil)
zonă de barbeque
loc de joacă din lemn cu căsuță, tobogan și leagăne – un adevărat colț de paradis verde, perfect pentru familii, prieteni și chiar pentru cei mai buni prieteni necuvântători.
Preț de vânzare: 439.500 €
O proprietate completă, solidă, elegantă și gata de locuit – ideală pentru cei care caută liniște, confort și intimitate, fără a renunța la proximitatea orașului.
ID extern: P144192