







Vă prezentăm spre vânzare un duplex spațios și modern, situat într-o zonă liniștită și în plină dezvoltare din Voroneț, ideal pentru familii care își doresc confort, spațiu și intimitate.
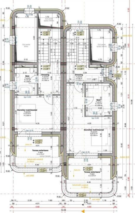
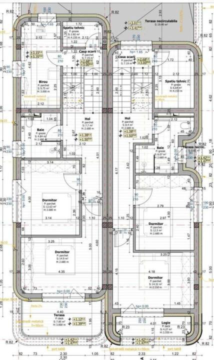
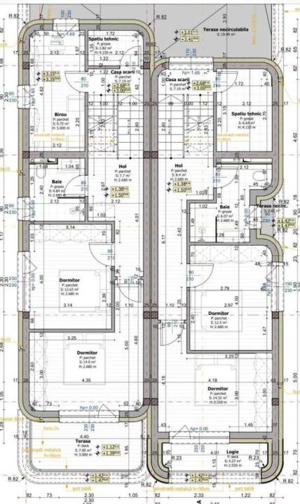
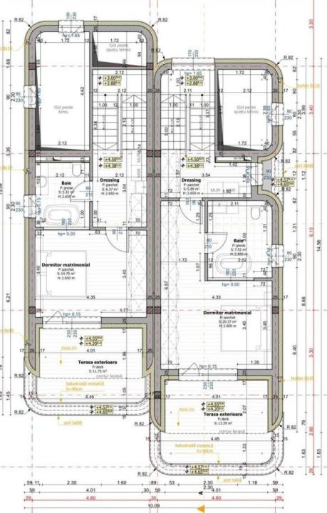
Fiecare unitate dispune de 150 mp suprafață utilă și este amplasată pe un teren de 315 mp, oferind o compartimentare practică și echilibrată, perfect adaptată stilului de viață modern.
Compartimentare:
Living generos și luminos
Bucătărie separată cu cămară
Birou (ideal pentru work from home)
3 dormitoare spațioase
3 băi
Cameră tehnică / spațiu de depozitare
3 terase pentru relaxare
În plus, proprietatea beneficiază de 2 locuri de parcare în curte, oferind confort și siguranță pentru mașinile familiei.
Dotări și avantaje:
Încălzire în pardoseală pentru un confort termic ridicat
Centrală termică proprie
Tâmplărie premium Veka
Termosistem cu polistiren grafitat de 15 cm, pentru o eficiență energetică sporită
Posibilitate de personalizare a finisajelor interioare, astfel încât locuința să reflecte perfect stilul viitorilor proprietari
Proprietatea se predă la stadiul stabilit împreună cu cumpărătorul, oferind flexibilitate în alegerea finisajelor.
Termen de finalizare: Iunie 2026
Preț de vânzare: 379.000 € / unitate
Această proprietate reprezintă o oportunitate excelentă pentru cei care caută o locuință modernă, spațioasă și bine poziționată în Cluj.
ID extern: P153013