







GreenCasa imobiliare va propune spre vanzare duplex cu panorama spre oras, situat in Dambul Rotund intr-un complex in curs de realizare, zona strazilor Lombului/ Gheorghe Sion, zona exclusiv de case, strazi asfaltate, cu acces rapid spre centrul orasului, statie de autobuz in imediata apropiere.
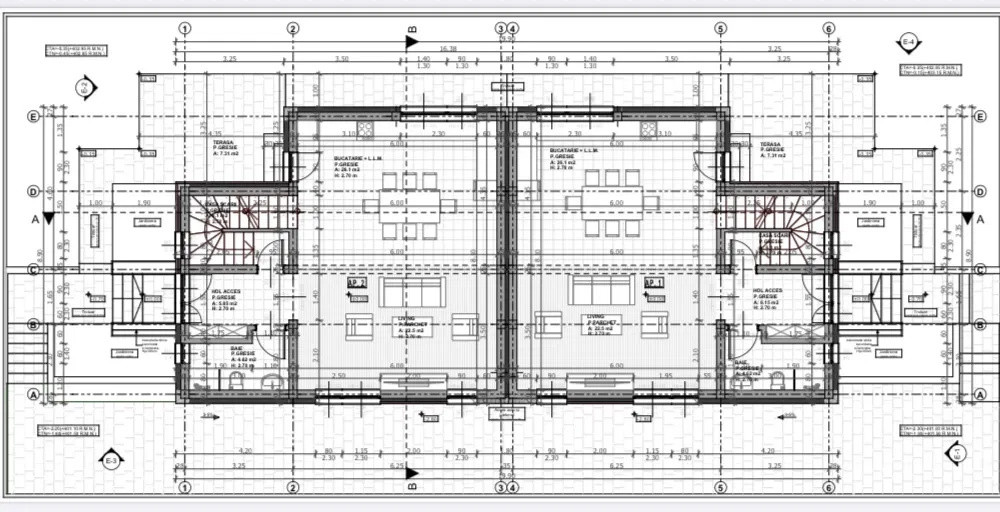
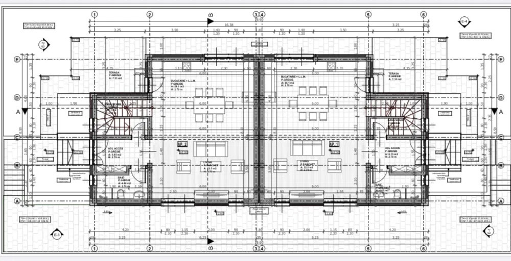
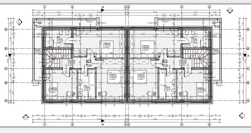
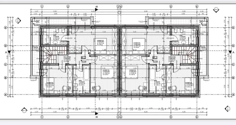
Imobilul este compus din doua unitati locative, dispus pe 3 niveluri: S + P + E, fiecare avand o suprafata individuala utila de 195 mp, plus terasa acoperita de 7,3 mp si balcoane in suprafata de 15 mp. Unitatile sunt separate intre ele prin pereti dubli (25cm).
Compartimentarea este urmatoarea:
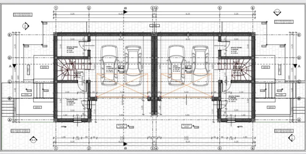
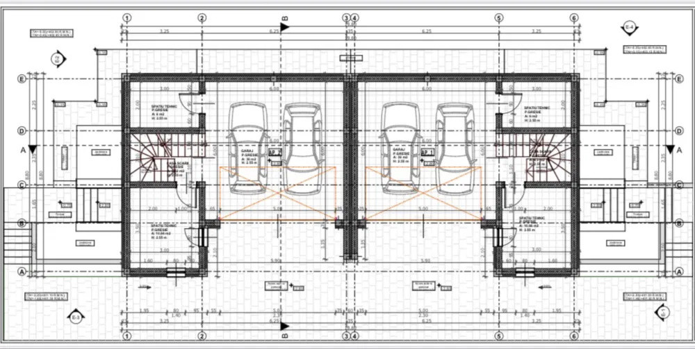
• Demisol: Garaj pentru 2 masini, 2 spatii tehnice
• Parter: Terasa, Hol acces, Bucatarie, Baie, Living cu loc de luat masa
• Etaj: Dormitor de matrimoniu cu baie proprie, 2 Dormitoare, Baie, balcon cu priveliste inspre oras + pod utilizabil
Structura imobilului va fi din zidarie de caramida de 25 cm, polistiren de 15 cm, tamplarie termoizolanta - geamuri termopan cu 7 camere. Fiecare unitate locativa se va preda la stadiul de semifinisat, centrala termica proprie, incalzire prin pardoseala pe toate zonele cu centrala pe gaz, instalatiile electrice si sanitare trase pe pozitie, acoperis din tigla, iar exteriorul amenajat. Imobilul va corespunde standardelor NZEP.
Corpului 2 (imobilul din spate) de 445 mp. la ambele se adauga drumul comun de acces de 50 mp.
Pretul pentru Corpul 2 este de 359.000 euro
Termene de finalizare:
Stadiu de rosu: decembrie 2025
Extrase CF individuale: septembrie 2026
ID extern: P135578