







Vă propunem spre vânzare casă/duplex situat în sat Gheorgheni, 168 mp utili, 600 mp teren individual.
Finalizare: primăvara 2026
Descoperă locuința ideală pentru o viață liniștită, aproape de natură, dar la doar câteva minute de oraș!
Această casă duplex spațioasă este perfectă pentru o familie care își dorește confort, siguranță și aer curat într-o comunitate primitoare.
Situată pe o stradă asfaltată, cu acces facil și teren generos de 600 mp, proprietatea oferă intimitatea și spațiul necesar pentru a te bucura de momente frumoase alături de cei dragi.
Detalii tehnice
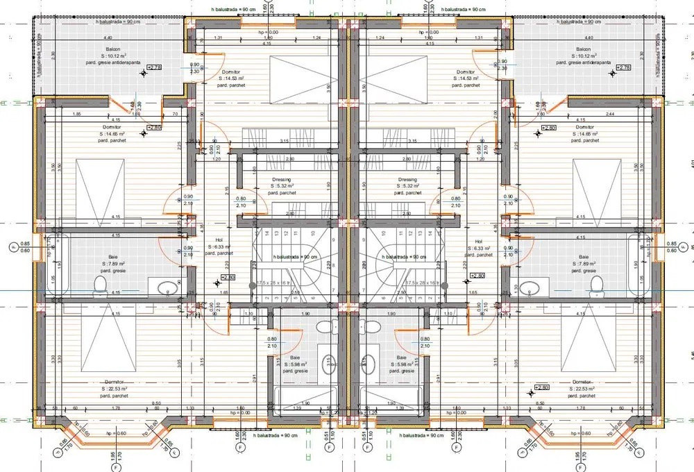
Suprafață utilă: 168 mp
Teren individual: 600 mp
Compartimentare optimă: 4 dormitoare, 2 dressinguri, 3 băi, living, bucătărie
Izolație exterioară 15 cm și izolație fonică între unități (polistiren 10 cm)
Ferestre Salamander BluEVOLUTION SL92 (3 sticle) – eficiență termică și fonică superioară
Încălzire în pardoseală
Placă de beton peste etaj – construcție solidă și durabilă
Utilități: apă, gaz, curent, canalizare (în curs de finalizare)
Stadiu și finisaje
Se predă semifinisată, incluzând:
sistem de încălzire în pardoseală,
șape mecanizate,
două mâini de glet,
instalații electrice și sanitare pe poziție.
Opțional: se poate preda și la roșu interior (exterior complet finalizat) – variantă ideală pentru cei care doresc să își personalizeze complet locuința.
Preț: 299000€
Preț negociabil,
TVA inclus & deductibil.
Ofertă specială pentru vânzare la roșu – preț redus!
De ce această casă?
Un loc perfect pentru a crește copii într-un mediu sănătos, liniștit și sigur, cu spațiu verde generos și aer curat. O combinație ideală între confortul urban și liniștea vieții la țară.
ID extern: P144232